- Статья
- Видео
Сколько должно быть розеток в спальне
Как и в любой другой комнате, количество розеток в спальне определяется количеством подключаемой техники. Давайте вспомним, что может подключаться в спальне и посчитаем сколько в среднем используется техники в современной спальне.
Телевизор и оборудование
Кроме розетки для телевизора в спальне часто подключают игровую приставку, акустическую систему, медиа-плеер, и тюнер для приема спутникового телевидения. Это довольно стандартный набор в наше время. Для подключения подобного оборудования нужно как минимум 2 и максимум 5 розеток. Для наших расчетов усредним числа и будем считать, что нужно три штуки.


Рабочее место
В малогабаритных квартирах, а в них живут большинство наших соотечественников, редко получается выделить отдельный кабинет для работы, поэтому рабочее место почти в каждой семье располагается в спальне. Что здесь нужно запитать? В первую очередь это компьютер, если у вас ноутбук – достаточно 1 розетки, а стационарный ПК, то как минимум 2 для монитора и системного блока и возможно еще 1 для колонок, плюс для Wi-Fi роутера. Также нельзя забыть о настольной лампе. Итого от 3-4 штук.


Места для уюта и отдыха
К таким местам отнесем прикроватные тумбочки, столик для макияжа с подсветкой и разнообразные торшеры.


Итого нужно подключить к питанию подсветку для макияжа и два прикроватных светильника, то есть потребуется установить 3 розетки.


Схема расположения
По советам профессионалов мы сделали пошаговую инструкцию по выбору расположения электроточек в спальне. Все шаги делать до монтажа проводки и штробления стен, карандашом или маркером на стенах.
Первый шаг – считаем количество оборудования, выше описан типовой набор, у нас вышло около 9 розеток для него.
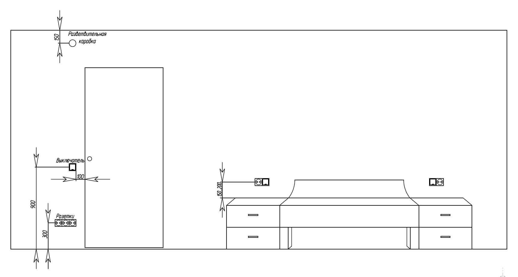
Второй шаг — разбиваем комнаты на зоны и определяем, как будем подключать оборудование. Итак, для подключения телевизора нужно установить блок из 3 и более розеток, можно установить по 2 двойных или 3-4 одинарных за телевизором. Если он стоит на тумбе – возможна установка вдоль плинтуса, а если он подвешен на стене – 130-150 сантиметров прямо за телевизором. Так вы сможете скрыть провода и улучшить эстетический вид комнаты.




Под рабочее место на самом деле достаточно и 2 электроточек, ведь компьютерную технику положено подключать через сетевой фильтр. От него запитаем и акустическую систему, и роутер, и другие сопутствующие приборы, а ко второй подключим настольную лампу.


Высота установки в этом случае должна быть немного выше стола. При условии, что рабочие столы в среднем по 75-80 см, значит устанавливаем их на высоте 90-100 см или под ним – высота 30-60 см.


Если у вас большая спальня и с каждой стороны возле кровати стоит прикроватная тумбочка, то возле неё устанавливаем по 2 розетки: 1 для светильника и 1 для зарядки мобильных устройств. Если вы обычно заряжаете что-то еще кроме смартфона или часто работает за ноутбуком лёжа в постели, то будем идеальным решением установить 2 или 3 с каждой стороны возле кровати на расстоянии вытянутой руки. Правильное их расположение на 10-20 сантиметров над тумбочкой. Они обычно невысокие, значит розетка будет установлена на высоте около 60-80 см.


И около стола для макияжа или трюмо устанавливаете две розетки – одна для светильника, а вторая для фена и плойки, например. Как её расположить решайте, опираясь на длину проводов. Оптимальной будет установка на высоте 120 см от пола.
Третий шаг – нужно определить достаточно ли мест для подключения приборов в спальне и не создается ли впечатление что их слишком много. Если розетки ощутимо портят внешний вид помещения, можно визуально уменьшить количество. Более точно подойдите к вопросу где их ставить. Например, если возле прикроватных тумбочек вы решили установить 4 розетки, посмотрите где они будут лучше смотреться вверху или внизу у кровати, перенеся некоторые за мебель или ближе к плинтусу. Кстати, если вы в этой комнате будете гладить белье – также позаботьтесь о подключении утюга около свободного угла или стены.


Также рекомендуем посмотреть видео, на котором наглядно показывается, где лучше установить выключатели и розетки в спальне:
Для каждой спальни правильное расположение всех элементов интерьера подбирается индивидуально. Поэтому данную статью следует рассматривать как один из вариантов решения задачи. Размещение розеток в спальне в большей степени зависит от количества оборудования и привычек жильцов. Возможно вам будет удобно вообще разместить блок из дюжины точек для подключения питания в одном ряду где-нибудь возле стола или тумбы. Также немаловажную роль играет дизайн и размеры помещения.
Также читают:
- Как расположить розетки на кухне
- Правильное размещение светильников на потолке
- Как разметить стены под электропроводку