Вводно-распределительные устройства (ВРУ) — назначение, виды, комплектация

Для распределения и контроля поступающей электрической энергии в квартиру или дома используется большое количество разнообразных приборов. Вводно распределительное устройство позволяет сгруппировать их и обеспечить экономию пространства, которое они занимают.

ВРУ жилого (общественного) здания

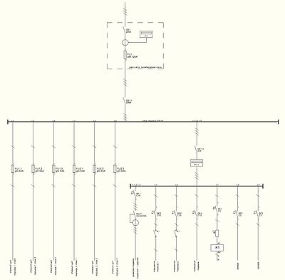
пример однолинейной схемы ВРУ жилого здания с 24 квартирами

ВРУ жилого и/или общественного здания предназначено для использования в сети напряжением 230/400 В трёхфазного переменного тока частотой 50 Гц в сетях с глухозаземлённой нейтралью, для защиты линий при перегрузках и коротких замыканиях, а также для нечастых (до 6 включений в час) оперативных включений и отключений электрических сетей и обычно представляет собой заземлённый металлический шкаф защищённого исполнения, внутри которого может находиться соответствующая аппаратура: рубильники, предохранители, счётчики электрической энергии, панели аварийного ввода резерва, реле контроля фаз, выключатель аварийного освещения, датчики распределения нагрузки по фазам, вольтметры и амперметры. На дверь ВРУ может выводиться индикация основных параметров электросети: напряжения, тока, срабатывания защит, асимметрии по фазам, и пр. Амперметры и счётчики энергии включаются через трансформаторы тока.

Ввод кабелей и проводов предусмотрен снизу шкафа, вывод — снизу или через верхнюю съёмную крышку. Максимальное количество и сечение жил проводов и кабелей, подсоединяемых к одному вводному зажиму ВРУ, установленному в общественных зданиях и/или домах повышенной этажности — 4×150 мм2.

В СССР ВРУ часто комплектовались из типовых вводных панелей ВРУ-В1 — ВРУ-В3 и распределительных панелей типа ВРУ-12 — ВРУ-24. Панели шкафного типа поставлялись с установленной аппаратурой, со всеми внутренними электрическими соединениями и проводами межпанельных соединений. Габаритные размеры всех панелей: 1 700×800×500 мм.

Вводно-распределительное устройство (ВРУ) это

Вводно-распределительное устройство (ВРУ) это специальное электротехническое устройство, с установленными в нем аппаратам и приборами. В отличие от вводного устройства (ВУ) в вводно-распределительном устройстве происходит не только прием, но и распределение электрической энергии по электрогруппам внутри дома. Устанавливается вводное распределительное устройство на вводе кабеля электропитания обычно в доме или в пристройке к дому..

Назначение электроустановки

Электроэнергия, поступающая в квартиру, предварительно распределяется и контролируется разными видами приборов, сгруппировавшихся на небольшом участке в единую систему ВРУ, которое размещается в общем шкафу. Его корпус может быть разной величины, зависящей от количества наполнения трансформаторами, рубильниками, автоматами, счётчиками и другими устройствами. Главным назначением ВРУ является снабжение зданий или отдельных помещений электроэнергией.

Электроустановки обустроены панелями, которые открываются с одной стороны и называются односторонними. Бывают одно-, двух- и трехпанельные устройства с соответствующей аббревиатурой:

  1. ВРУ1 в полном комплекте применяют вне щитовых помещений — в подвалах, на лестничных площадках;
  2. ВРУ2 состоит из профессионального набора всех средств распределения и контроля электроэнергии. Предназначается для эксплуатации в щитовых помещениях.
  3. ВРУЗ характеризуется небольшой комплектацией приборов. Является частью основного электротехнического щита.

Некоторые варианты размещены в специальных контейнерах. Эти модели тщательно защищены от попадания влаги и пыли, негативного влияния окружающей среды. Назначения устройства следующие:

  1. Распределение электроэнергии по различным объектам.
  2. Схема структуры ВРУ состоит из всей контрольно-защитной аппаратуры, приборов измерения и учёта расхода электроэнергии и выполняет соответствующие функции.
  3. Благодаря оснащению дополнительными рубильниками обеспечивается защита электросети пользователя от замыканий и внезапных перегрузок.
  4. При помощи ВРУ оперативно включается и отключается электричество от отдельных помещений здания, оборудования и различных устройств.

В домах частного сектора подключение ВРУ выполняется в том случае, если нужно распределить энергоресурсы по нескольким точкам (гараж, баня, хозблок, летняя кухня и так далее). В этой ситуации монтируется основная электроустановка, а затем уже устраивается индивидуальная система для каждого отдельного строения.

Существует ещё ИВРУ — инвентарное ВРУ, отличающееся от стандартного модернизацией, повышенной степенью антивандальной защиты. Это даёт возможность применять его в полевых условиях и на стройках.

ВРУ помещения промышленного предприятия

Что такое вводно-распределительное устройство

Вводно-распределительные устройства относятся к специальной электротехнической аппаратуре, в которой установлены различные аппараты и приборы. С помощью ВРУ электроэнергия не только принимается, но и распределяется по группам потребителей внутри объекта. Они устанавливаются на вводе питающего кабеля в самом здании или в пристройке. При наличии нескольких отдельных вводов в больших дамах, на каждый из них рекомендуется устанавливать отдельное ВРУ.

Если на территории основного объекта имеются дополнительные постройки, то после главного ВРУ, нужно установить вводно-распределительное устройство в каждую из них. Все оборудование устанавливается в специальные шкафы. Их стандартная комплектация включает в себя следующие составляющие:

Медные шины РЕ и N. Соединение проводов с медной шиной РЕ выполняется болтами шайбами и гайками. Для более надежного крепления дополнительно используются специальные гроверные шайбы. Для выполнения этих работ нужно обязательно использовать электрический или механический инструмент. Шина РЕ должна быть оборудована местами для подключения всех необходимых проводников – вводного PEN, заземляющего и других. К медной шине N подключаются нулевые рабочие проводники домашней электрической сети.

Автомат ввода или плавкие предохранители, объединенные в группу. Предназначен для подключения вводного питающего кабеля. Его номинал выбирается в соответствии с проектом системы электроснабжения. Вводной защитный автомат защищает домашнюю электропроводку от перегрузок, коротких замыканий, преднамеренных отключений питания перед проведением техобслуживания сети.

Разрядники или ограничители напряжения. Их установка производится после вводного автомата. Через эти устройства осуществляется соединение фазных проводов с защитной шиной РЕ. В случае импульсных перегрузок происходит срабатывание разрядников. На шину РЕ попадает фазное напряжение, что приводит к срабатыванию защиты ВРУ.

Блок автоматов распределительных сетей для отдельных групп. Основной функцией этих устройств является распределение электроэнергии по группам. Каждая группа соответствует кухне, ванной, комнатам, системе освещения и другим потребителям и требует отдельного защитного автомата. В случае необходимости дополнительно могут быть установлены устройства защитного отключения. Установка и подключение автоматического выключателя должна обеспечивать равномерное распределение нагрузки между фазами. Число автоматов для каждой фазы рассчитывается с учетом коэффициента спроса, определяющего вероятность максимальной нагрузки всех электрических сетей.

Провода и наборные клеммники для коммутации во ВРУ. Каждый провод должен иметь собственный цвет: красный – фазные провода, голубой – провод N, желто-зеленый – РЕ. Концы проводов во внутренних сетях маркируются специальными надписями. Фазные шины рекомендуется окрасить в разные цвета или пометить как L1, L2, L3. Каждый провод должен быть изолирован из расчета напряжения 660 В. При вводе во ВРУ они защищаются проходными втулками.

Кроме основных приборов и аппаратуры, во вводно-распределительное устройство помещается блок учета, куда входит счетчик учета расхода потребляемой электрической энергии.

Комплектация вводно-распределительных устройств для дома

Приведу пример комплектации вводно-распределительного устройства для среднего частного дома

  • Две медные шины:PE шина и N шина(1);
  • Вводной автомат или группа плавких предохранителей(2);
  • Разрядник (ограничитель напряжения)(3);
  • Блок учета со счетчиком учета расхода электроэнергии(4);
  • Группа автоматов защиты для однофазных групповых сетей дома(5);
  • Блок автоматов распределительных сетей;
  • Наборные клемники для коммутации проводов сети и сами провода.

Виды вводно распределительных устройств

Существует собственная классификация вводно распределительных устройств. Прежде всего они разделяются в соответствии с номинальным током 250, 400 и 630 А, а также с размерами и количеством встроенных контрольных и защитных приборов. Некоторые модели имеют автоматические выключатели энергии, устройства контроля над освещением, а также специальные места для монтажа приборов учета электроэнергии.

В зависимости от предназначения и особенностей конструкции, все распределительные щиты подразделяются на различные виды и

  • Главный распределительный щиток (ГРЩ). Относится к силовым высоковольтным установкам. По своей сути – это высокотехнологичная механическая или электронная система, обеспечивающая объект электрической энергией
  • Вводно распределительное устройство. Состоит из целого комплекса аппаратуры, приборов и оборудования. Используется для приема, распределения и учета электроэнергии. Представляет собой металлический корпус, в котором установлены сменяемые панели
  • Щиты распределительные. Принимают участие в непосредственном распределении электроэнергии, обеспечивают защиту потребителей от сверхтоков и коротких замыканий. Устанавливаются в жилых и общественных зданиях
  • Щиты управления и автоматики. Применяются в автоматизированных системах: пожарных, осветительных, вентиляционных и других
  • Щиты учета. Используются в условиях промышленного производства для учета электроэнергии в трехфазных сетях. В жилых зданиях и офисах применяются очень редко

В случае необходимости в устройствах могут быть предусмотрены дополнительные места для установки автоматических выключателей и УЗО. Модели с использованием предохранителей не только защитят от перепадов напряжения, но и обеспечат быстрое отключение тока в разных местах и помещениях. Если же с выбором конкретного варианта возникают затруднения, можно выполнить компоновку из нескольких типов панелей. В результате, получится универсальное вводно распределительное устройство, отвечающее всем необходимым требованиям.

Технические характеристики

Каждое вводно распределительное устройство имеет собственные характеристики (с АВР, без него, с автоматами и т. д.). Перед началом установки требуется изучить все данные, указанные в паспортах приборов. Рассмотрим характеристики самых популярных моделей:

ВП – модель с переключателями. ВП ВРУ-8500:

В зависимости от потребностей габаритные размеры могут изменяться. ВРУ этого типа рекомендуется для установки во внутридомовых щитовых. Не подходят для уличного использования.

ВРУ-3-10-УХЛ4:

Аналогичными характеристиками обладает устройство типа ВРУМ.

ВРУЗСМ:

Описание этого распредустройства несколько отличается от рассмотренных выше. Оно, в основном, используется для частной или производственной постройки, подходит для установки на улицу. Маркировка:

  • ВРУ (ВУ) – Вводно распределительное устройство;
  • 3 – панель третья по счету по разработке;
  • С – сертификат завода, в данном случае, Староокольского завода;
  • М – устройство модернизированной серии (со счетчиком, автоматами и контролем освещения).

Видео: ВРУ многоквартирного дома

Классификация

Различают несколько классификаций РУ по различным особенностям. Распределительные устройства, в зависимости от условий эксплуатации бывают(чтобы увеличить схему  кликните по ней):

  • открытого типа (ОРУ) – оборудование, расположенное вне зданий или других укрытий. Такие устройства отличаются удобством проверки исправности, простотой расположения и внесения изменений, но занимают большое пространство и требуют повышенной защиты от неблагоприятного воздействия атмосферных и климатических факторов;

    ОРУ

  • закрытого типа (ЗРУ) – размещаются в защищённых объектах и занимают намного меньше места. Недостаток – сложность в обслуживании в связи с большей компактностью размещения. Характерны для условий промышленного предприятия или города.

    ЗРУ

Видео про ОРУ:

Указанные РУ могут различаться по следующим критериям:

  • способу разделения – в виде отдельных секций или с шинными системами. Шинные системы могут переключать потребителей от одной секции к другой. Если выполняются отдельные секции, потребитель подключается персонально;
  • схеме подключения устройств – кольцевым и радиальным способом. При кольцевой схеме один объект подключается к нескольким выключателям. Если устраивается радиальная схема – потребители питаются посредством разъединителей сборных шин с помощью одного выключателя. Радиальный способ более простой, а кольцевой – надёжнее и практичнее для обеспечения работы электрооборудования;
  • присутствия обходных элементов – данная система позволяет производить ремонт оборудования без отключения абонентов.

В дополнение к перечисленным разновидностям используется элегазовое оборудование, предусматривающее помещение установок внутрь пространства, заполненного специальным составом с высокими свойствами безопасности.

Конструкция – КРУ

Также применяются комплектные распределительные устройства (КРУ), состоящие из типовых модулей, помещённых в шкафы. Такие элементы содержат необходимые предохранительные блоки, выключатели и другие составляющие и поставляются в готовом виде, не требующем комплектации. Если устройство предполагает наружную установку, его называют КРУН. Такой модуль предусматривает наличие соответствующей защиты.

КРУН

Видео про КРУ:

В зависимости от класса напряжения, параметров сети, численного состава абонентов, предусмотрено наличие следующих распределительных устройств:

  • сборных камер;
  • комплектных распределительных устройств;
  • пунктов по ведению коммерческого учёта;
  • комплектных трансформаторных подстанций;
  • пунктов по автоматическому регулированию напряжения;
  • панелей щитов распределения;
  • распределительных низковольтных щитков;
  • шкафов по учёту электрической энергии наружного размещения для частных домов;
  • устройств по контролю параметров.

Детальнее об особенностях РУ по характеристикам напряжения.

Подробнее про РУ можете найти в этой книге(про РУ со страницы 392):Открыть книгу

РУ до 1 кВ

Указанные элементы комплектуют и размещают в специальных шкафах или щитках. Их назначение может предусматривать передачу энергии потребителям или запитку собственного оборудования.

Кроме основных систем, такие модули могут снабжаться дополнительными устройствами:

  • токовыми трансформаторами и приборами учёта электрической энергии;
  • индикационными цепями и сигнализаторами положения коммутационных переключателей;
  • измерительными блоками для определения технических характеристик цепей;
  • сигнализационными и защитными устройствами от замыканий на землю;
  • аппаратами автоматического включения резервных цепей;
  • дистанционными системами управления.

Низковольтные распределительные устройства могут включать модули с постоянным током, распределяющие напряжение от источников питания к оборудованию и потребителям.

Высоковольтное оборудование

Данные системы рассчитаны на работу элементов в условиях напряжения выше 1 кВ.

РУ могут комплектоваться в шкафах, разделённых на отдельные отсеки с токовыми трансформаторами, отходящими кабелями, сборными шинами, выкатной частью и отсеками вторичных цепей.

Отдельные отсеки надёжно изолируются, для обеспечения безопасности эксплуатации. В выкатных модулях, учитывая назначение, размещаются выключатели, трансформаторы напряжения, разрядники, трансформаторы собственных потребностей.

Расположение выдвижного элемента может предусматривать нахождение в рабочем, контрольном (разобщённом) или ремонтном положении. Если аппарат в работе, замыкаются главные и вспомогательные схемы. Для контрольного положения характерно разомкнутое состояние главных и замкнутое – вспомогательных цепей. При ремонтном положении обе цепи размыкаются, а выдвижной элемент располагается за пределами шкафа.

Шины токоведущих элементов выполняются из алюминия или сплавов на его основе. При применении токов большой величины используются медные элементы, а если значение номинального электротока в пределах 200 А – из стали.

Безопасность работы оборудования обеспечивается за счёт соответствующих блокирующих систем. Применяются шторки и ограждения, закрывающие выкаченный выдвижной элемент и не допускающий возможность включения оборудования в таком состоянии.

Грамотное использование и комплектация распределительных устройств обеспечивает надёжную подачу энергии потребителям в заданных параметрах и безопасность эксплуатации энергетического оборудования.

Монтаж и подключение вводного распределительного устройства

Монтаж вводно-распределительных устройств выполняется по электрической схеме, в соответствии с которой все действия производятся в определенной последовательности. Нарушение порядка действий совершенно недопустимо в связи с требованиями электробезопасности.

В самом начале работ объект отключается от источника питания и полностью обесточивается. После этого отсоединяются вводные питающие кабели, демонтируется электрооборудование и ВРУ, подлежащие замене. Далее, выполняется монтаж новых вводно-распределительных устройств. Для правильного выбора крепежа имеется утвержденная схема. Затем прокладывается кабель и заделываются все жилы. Питающие провода подводятся и закрепляются на новом электрооборудовании, вводные кабели подключаются к центральному рубильнику или к другим видам размыкающих устройств. Собранная электрическая схема тестируется, а все ее элементы маркируются. После этого выполняется подключение объекта к питающему фидеру.

Данные электромонтажные работы нельзя доверять частным лицам или неспециализированным организациям. Некачественное выполнение операций может привести к авариям, несчастным случаям и другим негативным последствиям. Наиболее характерными нарушениями неквалифицированных работников является неправильное соединение жил проводов в зажимах и монтаж электрооборудования. В процессе монтажа нередко нарушается изоляция кабелей и проводов, обрываются цепи заземления, недостаточно зажимаются жилы в защитной аппаратуре.

Всего этого можно избежать, привлекая к работам только квалифицированных специалистов. Только они по завершении электромонтажных работ качественно проведут все необходимые замеры, чтобы исключить или выявить возможные нарушения. По итогам измерений составляется технический отчет.

Данная проверка начинается с визуального осмотра всей собранной схемы и ее отдельных элементов. Производятся замеры заземления без разрыва цепи заземленных установок. Выполняется проверка качества изоляции, замеряется ее сопротивление. Также, замеряется полное сопротивление петли «фаза-ноль», производится сверка параметров цепи и технических характеристик защитной аппаратуры, подтверждение непрерывности защитных проводников. Проверяются автоматические выключатели на срабатывание по току. Все эти мероприятия гарантируют надежную и качественную работу вводно-распределительных устройств, выполнение ими всех функций в полном объеме.

Ревизия электрощита

Раз в год специалисты обязаны проводить профилактические осмотры или ревизию электроустановки. Но возникают ситуации, когда необходимо посмотреть, в каком состоянии находится распределительная система и входящие в неё приборы. Например, купив квартиру, выясняется, что с электрикой не всё в порядке:

  • мигает свет;
  • возникают проблемы с розетками.

Нужно сделать ревизию электрощита. Речь идёт о щите, расположенном в квартире, на лестничной площадке многоквартирного дома (смотреть свою секцию) или в частном доме.

В первую очередь следует обеспечить хорошее освещение. Затем необходимо отключить все автоматы, в том числе вводный. В процессе осмотра в обязательном порядке соблюдать технику безопасности. Если обнаружились трещины и сколы на пластиковом щите, их нужно устранить. Крышка щита должна свободно открываться и закрываться.

Открыв щит можно обнаружить много пыли. Поэтому, сняв кожух, защищающий приборы, сухой кисточкой аккуратно убрать загрязнения со всех приспособлений и проводов. Все кабели должны быть промаркированы, автоматы подписаны.

Далее необходимо проверить все соединения проводов. Нужно обратить внимание на места контактов, на них не должно быть следов ржавчины и окислений. Если потребуется, соединение нужно разобрать и зачистить концы провода. На одном из них сделать петлю под болт и при помощи шайбы гравер снова соединить. Чтобы усилить гаечное соединение, используется контргайка.

Кроме этого, нужно провести профилактику контакта заземления щита. Для этого требуется:

  • снять заземляющий провод;
  • зачистить его;
  • проверить болт;
  • затем выполнить соединение и при необходимости усилить второй гайкой.

Если проводить регулярные осмотры и своевременно выполнять профилактические мероприятия, ВРУ предоставит качественную работу и безопасность потребителям. И все же по поводу выполнения ревизии лучше обращаться к специалистам.

Распредустройства для производств

Особенность применения ВРУ на производствах заключается в потреблении ими больших мощностей. Поэтому здесь пользуются вводными и распределительными шкафами заводского изготовления, согласно ТУ или ГОСТу. Аналогичные распредустройства применяются в электрических подстанциях на 380 В.

В их конструкциях (односторонних или двухсторонних) собраны наборы из предохранителей, автоматов, рубильников.

Односторонние щиты монтируют непосредственно у стен, двухсторонние модели на любом свободном пространстве, соблюдая расстояние от стен не менее 80 см. Преимущество первых моделей заключается в том, что их установка не требует много места, зато второй вариант удобен при обслуживании.

Заводами изготавливаются также и модульные виды распределительных устройств, представляющих собой, например, блок автоматов или предохранителей, блок счётчиков для контроля и так далее. Помещения, предназначенные для установки ВРУ должны соответствовать определённым требованиям:

  1. Недопустима установка распределительных устройств в помещениях с повышенной влажностью, особенно в тех, где возможно затопление.
  2. Исключено прохождение газопровода, другие проложенные коммуникации допустимы, но только без соединений и запорной арматуры: вентилей, задвижек.
  3. Доступ в щитовую разрешён только обслуживающему персоналу, имеющему допуск.
  4. Электрический шкаф, установленный на лестничной площадке или в коридоре, должен закрываться, а все рукоятки регулируемых приборов сняты или заперты от посторонних в шкафу.

Аппаратура вводно-распределительного устройства должна располагаться в таких местах, которые должны быть доступны только для монтёров электроремонтных бригад. Называются эти места — щитовые. Они в обязательном порядке должны быть закрыты на замки от посторонних проникновений.

Ссылка на основную публикацию