- Статья
- Видео
Определяемся с расположением мебели и техники
Перед составлением схемы немаловажным будет учесть планировку помещений, планируемую расстановку мебели и размещение стационарных электроприборов. Места установки электрофурнитуры в комнате должны быть выбраны так, чтобы они не оказались заставленными диванами или шкафами и обеспечивали комфортный доступ к включению-выключению освещения и потребителей электроэнергии. Лучше будет, если обсуждение этого сложного вопроса вынести на семейный совет.
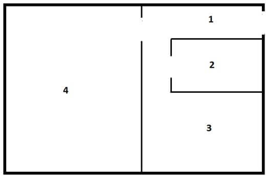
Первым делом необходимо сделать план помещений с указанием оконных и дверных проемов. Для того чтобы в дальнейшем было легче произвести подсчет необходимого количества кабеля и провода, составление плана лучше произвести в масштабе с соблюдением размеров. Процесс проектирования схемы электропроводки будет рассматриваться на примере однокомнатной квартиры. Название помещений на плане лучше пронумеровать и отдельно указать расшифровку.


Где: 1 – прихожая, 2 – ванная комната, 3 – кухня, 4 – зал.
Оптимальные места установки розеток
После этого на схему необходимо нанести места, где планируется разместить предметы мебели и стационарные электроприборы. Если бытовую аппаратуру выделить красным цветом, это значительно упростит работу по дальнейшему составлению схемы проводки. Все предметы электротехники рекомендуется пронумеровать и зафиксировать в расшифровке: 1 – стиральная машина, 2 — посудомоечная машина, 3 — электрическая плита, 4 – акустический центр, 5 – телевизор, 6 – музыкальный центр, 7 – персональный компьютер.


Составление плана расположения мебели и техники позволит определиться с точками оптимальной установки розеток. Схема размещения розеток в квартире:


Подробнее о том, на что обратить внимание и как разместить розетки на кухне и в ванной читайте в статьях:
- https://samelectrik.ru/rozetki-na-kuxne.html
- https://samelectrik.ru/gde-i-kak-raspolozhit-rozetki-v-vannoj-komnate.html
Чтобы спроектировать схему электропроводки, мы рекомендуем использовать специальные программы. Лучшие программы для составления электрических схем мы предоставили в отдельной статье!
Схема освещения
В классическом варианте потолочные светильники должны располагаться в центре помещения, место нахождения которого находятся в точке пересечения линий, проходящих через середину длины и ширины помещения. В прихожей, выполненной в виде буквы Г, устанавливается 2 светильника.
При нанесении на схему расположения выключателей необходимо учитывать, что дверь может открываться внутрь или наружу, быть правого или левого исполнения. Открытая дверь не должна мешать свободного доступа к нему. Выключатели, как правило, располагаются внутри комнат. Исключения составляют помещения с повышенным содержанием влаги, к которым относятся прачечные, бани, ванные комнаты. Это делается с целью обеспечения электробезопасности и сохранности коммутационной аппаратуры.


На представленном плане электропроводки показано, что выключатель освещения ванной комнаты находится за ее пределами.
Трассы прокладки кабелей и проводов
После определения места установки светильников, выключателей и розеток, необходимо составить схему маршрутов электропроводки, эта фаза проектирования является главной частью работы. Схема и монтаж проводки значительно упрощается в том случае, если в своем доме или квартире обустроены подвесные потолки. В этом случае провода укладываются в гофротрубах и крепятся к черновому потолку.
С целью экономии провода маршруты проводки выбираются по кратчайшему расстоянию. В штробы под штукатурку укладывается провод, соединяющий распределительные коробки с выключателями и розетками. При стандартном варианте обустройства потолков электропроводка укладывается в предварительно пробитые штробы по стенам помещения. Для подключения осветительных приборов провод пропускается по каналам потолочных перекрытий. Пример прокладки кабельной линии, в соответствии с существующими нормами, предоставлен на схеме:

Составление плана маршрута электропроводки надо начинать с самой дальней точки электрической сети. В данном случае это будет двойная розетка в зале, ее необходимо соединить с распределительной коробкой, которую целесообразно установить у входа в помещение. Затем на схему наносится маршрут прохождения провода, подключающего вторую розетку.


Сеть освещения будет состоять из проводов, первый из которых проходит от коробки до выключателя, второй, подключенный к потолочному светильнику, уложен в канале плиты перекрытия. Распределительная коробка в зале получает электропитание по двум проводам от распределительного щита, установленного в прихожей. Также необходимо предусмотреть заземление в квартире, если это возможно. В этом случае проводка будет трехжильной.
По такому принципу надо составить схему прокладки проводки в остальных комнатах. Для полноты картины можно предположить, что на кухне смонтирован подвесной потолок. В этом случае электропроводка будет проложена в гофротрубах, закрепленной дюбель гвоздями к бетонной плите перекрытия, маршруты ее прокладки будут выбраны с учетом кратчайшего расстояния. Спуски к электрофурнитуре будут выполнены под штукатуркой.


Не следует забывать, что электроснабжение помещений производится как минимум двумя группами проводов, один из которых обеспечивает питание силовой сети, другой предназначен для сети освещения. Более подробно о том, как разделить электропроводку на группы, мы рассказывали в отдельной статье.
Можно существенно сэкономить, если розетки соединять меду собой «шлейфом», минуя распредкоробки. Опытные электромонтеры не рекомендуют практиковать данный способ подключения, вследствие возникновения большой токовой нагрузки на розетках. К тому же при применении такого способа подключения выход из строя одной розетки может вызвать обесточивание всей силовой сети.
В заключении, на основании готовой и правильно составленной схемы, производится расчет необходимого метража проводки и сечения проводов, необходимого количества розеток, выключателей и распределительных коробок. Сечение проводников подбирается из расчета предполагаемой токовой нагрузки потребителей. О том, как рассчитать сечения кабеля, мы рассказывали в отдельной статье.
Также рекомендуем просмотреть видео, на которых наглядно рассмотрены этапы составления схемы проводки, а также примеры готовых проектов:
Теперь вы знаете, как должно осуществляться составление схемы электропроводки в квартире и частном доме. Как вы видите, чтобы самостоятельно составить план разводки кабеля и установки электрофурнитуры, нужно изучить все нюансы, которых достаточно много!
Рекомендуем также изучить:
- Как рассчитать количество кабеля для электропроводки
- Составление сметы на электромонтажные работы
- Условные обозначения на электрических схемах