Представить себе современную цивилизацию без электричества невозможно. Огромная часть углеводородов используется для генерации именно электроэнергии.
Однако электричество невозможно перевозить, как нефть или уголь. Для его транспортировки используют линии электропередачи (ЛЭП), обеспечивающие трафик электроэнергии большой мощности на необходимые расстояния. Приведение же параметров переданной по ним энергии к стандартам, свойственным ее потребителям, подразумевает использование трансформаторных подстанций, которые обеспечивают необходимое напряжение в сети. Таким образом, осуществляется питание всех электроустановок, начиная от лампочки в комнате и заканчивая промышленным оборудованием.


Для предотвращения травматизма обслуживающего персонала и тем более летальных исходов, учитывая высокий вольтаж, применяются заземляющие устройства воздушных линий и подстанций. Данная публикация ставит перед собой задачу разобраться в причинах их необходимости, а также конструкциях этих приспособлений.
Как нужно заземлить металлические опоры наружного освещения?
У многих возникает вопрос: “Надо ли заземлять металлические опоры освещения?”
Согласно нормам электробезопасности, инструкции по молниезащите и устройству сетей заземления, все стальные опоры, используемые для обустройства систем наружного освещения, нужно заземлить.
Что посоветовать начинающему фотографу при съемке интерьера?
ПУЭ п.6.1.45. При выполнении защитного заземления осветительных приборов наружного освещения должно выполняться также подключение железобетонных и металлических опор, а также тросов к заземлителю в сетях с изолированной нейтралью и к РЕ (PEN) проводнику в сетях с заземленной нейтралью.
Принцип действия защитного заземления заключается в том, что в случае нарушения изоляции электрический ток стекает на землю. Таким образом, в зоне растекания распределяются не опасные для человека напряжения, зависящие от удельного сопротивления почвы и расположения заземлителя. В том случае, если уличное освещение устанавливается в сетях с изолированной нейтралью, штыри или крюки фазных проводов на железных опорах, а также арматура и любые металлические конструкции должны быть заземлены при помощи специальных устройств – заземляющего контура, состоящего непосредственно из заземлителей и заземляющих проводников. Фундаменты под опоры не являются заземлителями, т.к. покрыты спецмастикой от корозии, имеющей диэлектрические свойства.


Как заземлить опору освещения?
Заземлители представляют собой специальные элементы, которые устанавливаются в грунте и могут быть в виде стержней – металлических прутков, так и в виде стальных полос (см. чертеж заземления опоры освещения треугольным контуром заземления). Вертикальные стержни забиваются на глубину до 3 метров, при этом их верхняя часть заземлителя должна устанавливаться приблизительно на расстоянии пол метра от основания почвы. На такой же глубине располагаются и горизонтальные проводники заземлителя, которые, чаще всего, применяются на каменистых почвах. При монтаже заземлителей, проводники, используемые для подсоединения контура заземления должны иметь диаметр как минимум 6 мм. Соединяются между собой заземляющие проводники и заземлители монтажной сваркой, а места соединений окрашиваются краской. Если наружное освещение устанавливается в сетях с заземленной нейтралью, штыри и крюки фазных проводов на металлических опорах, а также арматура и любые металлические конструкции должны подсоединяться к нулевому рабочему проводу. Как правило, это выполняется при помощи специального болта приваренного непосредственно к опоре или проушины. Таким образом, заземление металлических опор уличного освещения с кабельным питанием производится: • В сетях с изолированной нейтралью посредством использования металлической оболочки кабеля; • В сетях с заземленной нейтралью через нулевую жилу, которая соединена с оболочкой кабеля. Для контроля заземления опор уличного освещения после проведения всех электромонтажных работ следует провести замер сопротивления заземляющего устройства с помощью специального прибора. Значение сопротивления не должно быть выше 50 Ом. Заземление осветительных опор может выполнять функции молниезащиты
Особенно это важно, когда опора уличного освещения устанавливается вдали от зданий на открытых площадках. В силу конструктивных габаритов, то есть значительного возвышения над землей, осветительные опоры подвергаются большему воздействию различного вида погодных явлений, чем остальные составляющие пейзажа; высота опоры может достигать от 3 до 11 метров, в силу чего одна из первых и принимает на себя электроразряд
Особенно это актуально для мест, особо подверженных попаданию разряда. Ведь в случае попадания молнии в опору без заземления перенапряжение может возникнуть в целом по сети, что может привести к серьезным последствиям.
Например, представим ситуацию: молния всё же ударила в опору освещения (независимо от того есть там молниеприёмник или нет). Куда пойдёт ток молнии? Если связи с землёй нет вообще, то весь импульс молнии уйдёт в электрическую сеть. Вывод: заземлять опоры надо (причём лучше каждую) как минимум для отвода тока молнии; в подстанции откуда питается уличное освещение необходимо предусматривать хорошую защиту от перенапряжения вторичных проявлений молнии.
Ттк агнкс n 90. заземление железобетонных опор линии электроснабжения вл-10 кв,


1.1. Типоваятехнологическая карта (именуемая далее по тексту ТТК) — комплексныйорганизационно-технологический документ, разработанный на основеметодов научной организации труда для выполнения технологическогопроцесса и определяющий состав производственных операций сприменением наиболее современных средств механизации и способоввыполнения работ по определённо заданной технологии.
ТТКпредназначена для использования при разработке Проектовпроизводства работ (ППР), Проектов организации строительства (ПОС)и другой организационно-технологической документации строительнымиподразделениями. ТТК является составной частью Проектовпроизводства работ (далее по тексту — ППР) и используется в составеППР согласно МДС 12-81.2007.
1.2. В настоящей ТТКприведены указания по организации и технологии производства работпо заземлению железобетонных опор воздушной линии электроснабженияВЛ-10 кВ.
Определён составпроизводственных операций, требования к контролю качества и приемкеработ, плановая трудоемкость работ, трудовые, производственные иматериальные ресурсы, мероприятия по промышленной безопасности иохране труда.
1.3.
Нормативной базойдля разработки технологической карты являются:
-типовые чертежи;
-строительные нормы и правила (СНиП, СН, СП);
-заводские инструкции и технические условия (ТУ);
-нормы и расценки на строительно-монтажные работы (ГЭСН-2001ЕНиР);
-производственные нормы расхода материалов (НПРМ);
-местные прогрессивные нормы и расценки, нормы затрат труда, нормырасхода материально-технических ресурсов.
1.4.
Цель создания ТТК -дать рекомендуемую нормативными документами схему технологическогопроцесса при производстве монтажных работ по заземлениюжелезобетонных опор воздушной линии электроснабжения ВЛ-10 кВ, сцелью обеспечения их высокого качества, а также:
-снижение себестоимости работ;
-сокращение продолжительности строительства;
-обеспечение безопасности выполняемых работ;
-организации ритмичной работы;
-рациональное использование трудовых ресурсов и машин;
-унификации технологических решений.
1.5. На базе ТТКразрабатываются Рабочие технологические карты (РТК) на выполнениеотдельных видов работ (СНиП 3.01.01-85*»Организация строительного производства») по заземлениюжелезобетонных опор воздушной линии электроснабжения ВЛ-10 кВ.
Конструктивныеособенности их выполнения решаются в каждом конкретном случаеРабочим проектом. Состав и степень детализации материалов,разрабатываемых в РТК, устанавливаются соответствующей подряднойстроительной организацией, исходя из специфики и объема выполняемыхработ.
РТК рассматриваются иутверждаются в составе ППР руководителем Генеральной подряднойстроительной организации.
1.6. ТТК можно привязатьк конкретному объекту и условиям строительства. Этот процесссостоит в уточнении объемов работ, средств механизации, потребностив трудовых и материально-технических ресурсах.
Порядок привязки ТТК кместным условиям:
-рассмотрение материалов карты и выбор искомого варианта;
-проверка соответствия исходных данных (объемов работ, норм времени,марок и типов механизмов, применяемых строительных материалов,состава звена рабочих) принятому варианту;
-корректировка объемов работ в соответствии с избранным вариантомпроизводства работ и конкретным проектным решением;
-пересчёт калькуляции, технико-экономических показателей,потребности в машинах, механизмах, инструментах иматериально-технических ресурсах применительно к избранномуварианту;
-оформление графической части с конкретной привязкой механизмов,оборудования и приспособлений в соответствии с их фактическимигабаритами.
1.7. Типоваятехнологическая карта разработана для инженерно-техническихработников (производителей работ, мастеров, бригадиров) и рабочих,выполняющих работы в III-й температурной зоне, с целью ознакомления(обучения) их с правилами производства работ по заземлениюжелезобетонных опор воздушной линии электроснабжения ВЛ-10 кВ, сприменением наиболее современных средств механизации, прогрессивныхконструкций и способов выполнения работ.
Технологическаякарта разработана на следующие объёмы работ:
| -протяженность ВЛ-10 кВ электроснабжения | — 260 м; |
| -железобетонные опоры | — 7 шт. |
II.ОБЩИЕ ПОЛОЖЕНИЯ
2.1. Технологическаякарта разработана на комплекс работ по заземлению железобетонныхопор воздушной линии электроснабжения ВЛ-10 кВ.
2.2. Работы по заземлениюжелезобетонных опор воздушной линии электроснабжения ВЛ-10 кВ,выполняются механизированным отрядом в одну смену,продолжительность рабочего времени в течение смены составляет:
час.
2.3. При заземлениижелезобетонных опор воздушной линии электроснабжения ВЛ-10 кВ,выполняют следующие работы:
-заземление металлоконструкций на железобетонных опорах;
-устройство контура заземления вокруг каждой опоры;
-соединение заземления металлоконструкций опоры с контуромзаземления опоры.
2.4.
Технологическойкартой предусмотрено выполнение работ комплексным механизированнымзвеном в составе: переносная буровая установка ПБУ-10
(диаметр ввертываемого электрода 1218 мм, глубина погружения h=10,0 м, скоростьпогружения электрода 0,9-2,4 м/мин, масса установки m=36 кг);
экскаватор-погрузчик JCB 3CX m
(объем ковша g=0,28м, глубина копания =5,46 м);
передвижная бензиноваяэлектростанция Honda ET12000
(3-фазная 380/220 В, N=11 кВт,m=150 кг);
сварочный генератор (Honda) EVROPOWERЕР-200Х2
(однопостовый, бензиновый, Р=200 А, Н=230 В, весm=90 кг);
электрическая шлифовальная машинка PWS 750-125фирмы Bosch
(Р=1,9 кг; N=750 Вт); ручная
инжекторнаягазовая горелка Р2А-01
.
Рис.1. Экскаватор-погрузчик JCB 3CX m
Рис.2. Электростанция ET12000
Рис.3. Инжекторная газовая горелка Р2А-01
а — горелка; б — инжекторное устройство; 1 — мундштук; 2 — ниппельмундштука; 3 — наконечник; 4 — трубчатый мундштук; 5 — смесительнаякамера; 6 — резиновое кольцо; 7 — инжектор; 8 — накидная гайка; 9 -ацетиленовый вентиль; 10 — штуцер; 11 — накидная гайка; 12 -шланговый ниппель; 13 — трубка;14 — рукоять; 15 — сальниковаянабивка;16 — кислородный вентиль
Рис.4. Сварочный генератор ЕР-200Х2
Рис.5. Электрошлифмашинка PWS 750-125
2.5. Для монтажазаземления применяют следующие строительные материалы:электроды заземления
по ГОСТ Р 50571.5.
54-2013;электроды4,0 мм Э-42
по ГОСТ 9466-75;
петлевые плашечныезажимы ПС-1
по ГОСТ5583-78;
ацетилен растворенный технический
, поГОСТ 5457-60;
круг шлифовальный, зачистной«Vertex»
размером 230х6,0х22,0 мм, по ТУ3982-002-00221758-2009,
мастика изоляционная,битумно-резиновая, марки МБР-90
по ГОСТ 15836-79;
грунтовкаГТ-760ИН
по ТУ 102-340-83.
Рис.6. Электроды заземления
Источник: https://docs.cntd.ru/document/450702282
ПУЭ 7. Правила устройства электроустановок. Издание 7
2.4.38. На опорах ВЛ должны быть выполнены заземляющие устройства, предназначенные для повторного заземления, защиты от грозовых перенапряжений, заземления электрооборудования, установленного на опорах ВЛ. Сопротивление заземляющего устройства должно быть не более 30 Ом.
2.4.39. Металлические опоры, металлические конструкции и арматура железобетонных элементов опор должны быть присоединены к РЕN-проводнику.
2.4.40. На железобетонных опорах РЕN-проводник следует присоединять к арматуре железобетонных стоек и подкосов опор.
2.4.41. Крюки и штыри деревянных опор ВЛ, а также металлических и железобетонных опор при подвеске на них СИП с изолированным несущим проводником или со всеми несущими проводниками жгута заземлению не подлежат, за исключением крюков и штырей на опорах, где выполнены повторные заземления и заземления для защиты от атмосферных перенапряжений.
2.4.42. Крюки, штыри и арматура опор ВЛ напряжением до 1 кВ, ограничивающих пролет пересечения, а также опор, на которых производится совместная подвеска, должны быть заземлены.
2.4.43. На деревянных опорах ВЛ при переходе в кабельную линию заземляющий проводник должен быть присоединен к РЕN-проводнику ВЛ и к металлической оболочке кабеля.
2.4.44. Защитные аппараты, устанавливаемые на опорах ВЛ для защиты от грозовых перенапряжений, должны быть присоединены к заземлителю отдельным спуском.
2.4.45. Соединение заземляющих проводников между собой, присоединение их к верхним заземляющим выпускам стоек железобетонных опор, к крюкам и кронштейнам, а также к заземляемым металлоконструкциям и к заземляемому электрооборудованию, установленному на опорах ВЛ, должны выполняться сваркой или болтовыми соединениями.
Присоединение заземляющих проводников (спусков) к заземлителю в земле также должно выполняться сваркой или иметь болтовые соединения.
2.4.46. В населенной местности с одно- и двухэтажной застройкой ВЛ должны иметь заземляющие устройства, предназначенные для защиты от атмосферных перенапряжений. Сопротивления этих заземляющих устройств должны быть не более 30 Ом, а расстояния между ними должны быть не более 200 м для районов с числом грозовых часов в году до 40, 100 м – для районов с числом грозовых часов в году более 40.
Кроме того, заземляющие устройства должны быть выполнены:
1) на опорах с ответвлениями к вводам в здания, в которых может быть сосредоточено большое количество людей (школы, ясли, больницы) или которые представляют большую материальную ценность (животноводческие и птицеводческие помещения, склады);
2) на концевых опорах линий, имеющих ответвления к вводам, при этом наибольшее расстояние от соседнего заземления этих же линий должно быть не более 100 м для районов с числом грозовых часов в году до 40 и 50 м для районов с числом грозовых часов в году более 40.
2.4.47. В начале и конце каждой магистрали ВЛИ на проводах рекомендуется устанавливать зажимы для присоединения приборов контроля напряжения и переносного заземления.
Заземляющие устройства защиты от грозовых перенапряжений рекомендуется совмещать с повторным заземлением РЕN-проводника.
2.4.48. Требования к заземляющим устройствам повторного заземления и защитным проводникам приведены в 1.7.102, 1.7.103, 1.7.126. В качестве заземляющих проводников на опорах ВЛ допускается применять круглую сталь, имеющую антикоррозионное покрытие диаметром не менее 6 мм.
2.4.49. Оттяжки опор ВЛ должны быть присоединены к заземляющему проводнику.
Основные требования
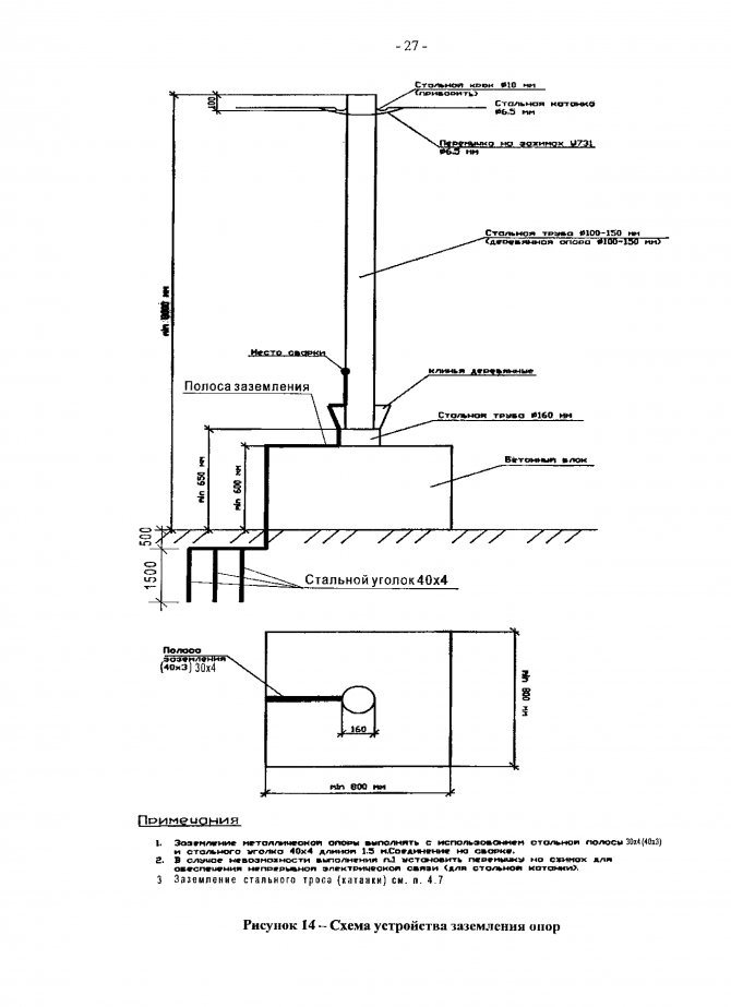
Согласно требованиям ПУЭ, практически каждая опора должна иметь заземляющее устройство. Оно необходимо для предотвращения перенапряжения атмосферного характера (молния), защиты электрооборудования, размещенного на мачте, а также реализации повторного заземления. Его сопротивление при этом не должно превышать 30 Ом. Причем громоотводы и подобные устройства, должны соединяться с заземлителем отдельным проводником. Кроме прочего, обязательному заземлению подлежат растяжки, устанавливаемые для устойчивости опоры, если они присутствуют в ее конструкции. Все межсоединения, провода снижения и заземлителя, например, предпочтительно выполнять сваркой, а, за неимением возможности, скручиваться болтами. Все части заземляющего устройства должны быть выполнены из стали диаметром не менее 6 мм. Сам проводник и места стыковок должны иметь антикоррозийное покрытие. Обычно это стальная оцинкованная проволока соответствующего диаметра.
Железобетонные столбы


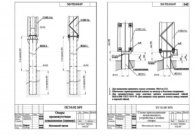
Устройство заземления ВЛ зависит от материала опор. В случае железобетонной конструкции все выступающие сверху и снизу элементы арматуры должны быть присоединены к PEN-проводнику (нулевая шина), который впоследствии играет роль заземления. К нему же следует присоединить крюки, кронштейны и другие металлоконструкции, находящиеся на опоре. Все это в равной степени относится и к металлическим мачтам ВЛ.
Деревянные столбы


С деревянными опорами ВЛ дело обстоит несколько иначе. Ввиду диэлектрических свойств древесины, каждая из мачт не нуждается в отдельном устройстве заземления. Оно устанавливается лишь при наличии на мачте молниеотвода или повторного заземления. Кроме того, металлическая оболочка кабеля соединяется с PEN-шиной линии в местах перехода ВЛ в кабельную линию.
Малоэтажная застройка
Все виды опор должны быть оборудованы устройствами заземления, если речь идет о населенных пунктах с малоэтажной застройкой (1 или 2 этажа).
Расстояние между такими мачтами зависит от среднегодового значения часов, в которые случается гроза. Если эта величина не превышает 40, то промежутки между опорами с громоотводами должны составлять менее 200 м. В противном случае это расстояние сокращается до 100 м. Кроме того, обязательному заземлению подлежат опоры, представляющие ветвление от ВЛ к объектам с потенциально массовым скоплением людей, клубы или дома культуры, например.
Установка заземлителей
Заземление ВЛ осуществляется вертикальными или горизонтальными заземлителями. В первом случае это стальные штыри, закопанные или забитые в землю, а во втором представляют собой полосы металла, расположенные параллельно земле под ее поверхностью. Последний вариант применяют для грунта с высоким удельным сопротивлением. После закапывания контура землю трамбуют для обеспечения лучшего ее контакта с металлом. Затем производится измерение сопротивления у заземления опор ВЛ. Оно является произведением значения, полученного прямым измерением, на коэффициент, зависящий от типа и размера заземлителя, а также климатической зоны (есть специальные таблицы).


Для чего нужно заземлять ЛЭП и подстанции
По большому счету, воздушная линия (ВЛ) представляет собой ряд столбов (опор), подвергающемуся воздействию природных факторов, таких как перепады температур, атмосферные осадки, прямое воздействие солнечного ультрафиолета и прочих. Ввиду их влияния, могут изменяться свойства диэлектриков и происходить прямое касание токонесущих частей кабеля с опорой. Кроме прочего, нередки кратковременные скачки напряжения в линии со значительным превышением номинального (допустимого) значения, что может приводить к замыканию между кабелем и конструкционными элементами опоры.


При прикосновении к такому столбу человек может получить травму и даже умереть. Поэтому установка заземления на воздушной линии отнюдь не относится к разряду рекомендаций или прихотей органов контроля. Это продиктовано правилами устройства электроустановок (ПУЭ) как основным нормативным документом, регламентирующим требования к энергосистемам, в том числе ВЛ. Согласно этому документу, заземляющие устройства опор воздушных линий обязательны.
Особняком стоит вопрос молниезащиты конструкций. Опоры могут быть выполнены из дерева, железобетона или стали. Для стоящих в чистом поле опор, порой, имеющих весьма значительную высоту, попадание молнии отнюдь не редкое явление. Если для стали или железобетона, имеющих хорошую электропроводность и неспособных к горению, это не принесет серьезных повреждений, то для деревянной конструкции чревато разрушением или воспламенением. Учитывая колоссальное напряжение разряда молнии, возможно разрушение диэлектриков, ограждающих конструкционные элементы от токонесущих частей ВЛ, что, в свою очередь, приводит к аварии.


Все это в равной степени относится и к подстанциям. До сих пор некоторые из них представляют собой большой трансформатор посреди поля, питающий ферму, например. Трансформаторные установки подвержены всем негативным воздействиям, что и ВЛ. Даже если это не так, они должны соответствовать требованиям ПУЭ.
Оборудованная же устройством заземления мачта или подстанция ведет себя иначе. Весь заряд, попавший на опору, стечет на землю, учитывая низкое ее сопротивление и огромную емкость. Это значит, что конструкция не будет находиться под напряжением и будет безопасна для жизни и здоровья людей.
Железобетонные конструкции
Для воздушных линий напряжением от 6 до 10 кВ роль спусков заземления играет арматура столбов. При наличии оттяжек можно использовать и их. Прокладываемые спуски делают из проводников сечением от 35 кв. мм или прутка диаметром не менее 10 мм. В ходе эксплуатации необходимо регулярно проверять состояние спуска: его повреждение может привести не только к поражению людей током и частично разрушить саму опору, если изоляция проводки будет нарушена.
При обустройстве заземления ж/б опор необходимо учитывать сопротивление грунтов. Если он не превышает 100 Ом/метр, система, привязанная к столбу, должна показывать не более 30 Ом. В более диэлектрической сухой почве, плохо проводящей ток, — 0,3 Ома. В первом случае допускается использование одного нижнего заземляющего штыревого электрода длиной 200 см, идущего прямо в комплекте с ж/б столбом. Но сопротивление заземлителя еще зависит и от его конструкции, глубины обустройства и взаимного расположения, если элементов несколько. Более точно здесь может сказать профильный специалист.


Как правильно делать заземления опорных конструкций
В современном мире освещение окружает нас повсеместно: и дома и на улице. Причем роль наружного типа освещения очень важна в городах и селах, ведь оно позволяет избегать множества проблем в вечернее и ночное время суток. При создании наружного типа освещения одним из важных этапов монтажа является заземление опор.
В ходе заземления для опор наружного типа освещения, необходимо понимать и знать основные правила, которые регламентируются соответствующей документацией (например, ПУЭ). Особенно важна данная процедура для воздушных линий (ВЛ) и сети опор наружного типа освещения. Обо всем, что касается этой процедуры, мы поговорим в данной статье.
Для чего нужно
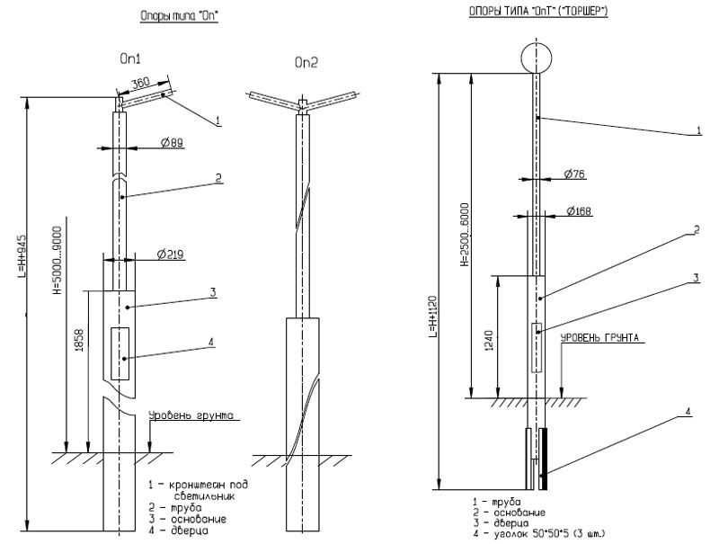
Опоры системы наружного освещения
Заземление для сети опор наружного типа освещения или ВЛ (0,4, 6-10, 20 и 35 кв) играет большое значение, поскольку препятствует риску получения электротравмам при соприкосновении с элементами конструкции в ситуации, когда произошло повреждение изоляции кабеля. При наличии заземления на металлической опоре сети наружного типа освещения или ВЛ, напряжение «разливается» по земле, тем самым становясь безопасным для людей. Данный показатель зависит от того, какое сопротивление имеет почва, в которой установлена опора ВЛ (0,4, 6-10, 20 и 35 кв). В результате, даже если где-то и произошло нарушение изоляции ВЛ, конструкции останутся безопасными.
При штатных условиях работы штыревые изоляторы, смонтированные на опорах, будут обеспечивать надежную изоляцию всех проводов от конструкционных элементов. Но бывают ситуации, когда напряжение в сети значительно превышает то напряжение, на которое была рассчитана ВЛ (0,4, 6-10, 20 и 35 кв). В такой ситуации перенапряжения возможен пробой изоляции ВЛ и, как следствие, выход сети из строя. Для того чтобы ограничить значение перенапряжения и повысить безопасность, необходимо понизить сопротивление для «растекания тока». С этой целью и устанавливают на ВЛ (0,4, 6-10, 20 и 35 кв) и подпорах наружного типа освещения защитное заземление.
Особенности процедуры
Заземление металлических опор
Контур заземления формируют исходя из того, из чего была изготовлена опора. На сегодняшний день применяется три варианта конструкций:
- железобетонные. Здесь при наличии сети заземленной нейтралью, вместе с арматурой конструкций, защиту оформляют через подсоединение к заземленному проводу (нулевому) специального проводника. Последний должен идти диаметром от 6 мм (не менее);
- деревянные. На деревянных подпорах штыри и крюки не заземляют;
При заземлении ВЛ (0,4, 6-10, 20 и 35 кв) необходимо учитывать и расстояние между соседними опорами. Обычно расстояние между ними составляет 100 или 200 м. Это параметр определяется среднегодовым числом гроз, характерным для данной местности. Обязательно следует делать заземление опор (повторное или нет), имеющих ответвление к сооружениям, где находится большое количество людей. Для предохранения от перенапряжения применяются две разновидности заземлителей:
- вертикальные штыри, которые зарываются в землю вертикально;
- горизонтальные пластины. Такие заземлители как правило применяются для каменистых почв.
Заземление опор вл 10 кв пуэ – 2.5 -7 1 — —


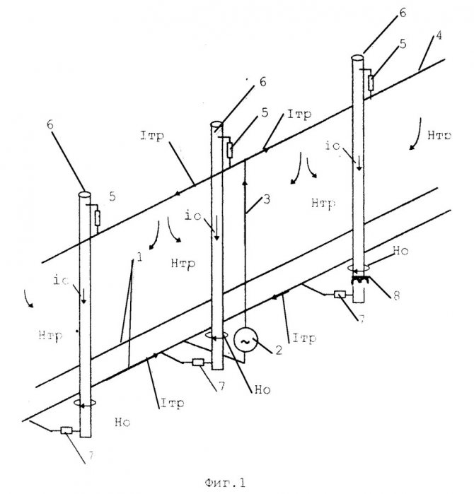
Повторное заземление ВЛИ – это заземление PEN-проводника от комплексной трансформаторной подстанции 10 кВ/0,4 кВ. Его основное назначение — повышение безопасности участков ЛЭП. ВЛИ расшифровывается как воздушная линия электропередач с изолированной проводкой СИП. Прокладываются ВЛ (воздушные линии) от трансформаторной станции, имеющей глухозаземленную нейтраль, на опорах из дерева или железобетона.
Деревянные
Подобная конструкция изготавливается из бревен без коры (круглый лес). Длина одного бревна от 5 до 13 метров с шагом 50 см. Толщина опоры от 12 до 26 сантиметров с шагом 20 мм. Чтобы деревянная подпора поддавалась гниению медленнее, ее покрывают специальным антисептиком. Существует два типа такой конструкции: С1 и С2.
Железобетонные
Подобное приспособление изготавливается из бетона и арматуры в виде прямоугольника или в форме трапеции. Железобетонное устройство обладает своей маркировкой и помечается как СВ. После этих букв пишутся номера, которые указывают длину конструкции. Например, подпора СВ 85. Цифра помечает, что ее протяженность составляет 8,5 метров. На фото ниже наглядно показано, как выглядит ЖБ опора:
Используются такие ЖБ конструкции:
- CВ 105;
- CВ 110;
- CВ 95;
- CВ 85.
Особенности системы
Здесь применяется датчик движения и другие элементы охранных систем.
- создание необходимого уровня подсветки приезжей части;
- подсветка тротуаров;
- обеспечение необходимого уровня освещенности на территории, вблизи заборов и других ограждений (для частных домов);
- создание единой системы освещения и сигнализации. Здесь применяется датчик движения и другие элементы охранных систем.


Подсветка дороги
Чтобы светильники наружного типа работали качественно и продолжительный период времени, необходимо следовать требованиям ПУЭ. При этом большое значение здесь имеет защитное заземление светильников. Чтобы сделать правильное заземление, нужно четко представлять себе весь этот процесс. Поэтому здесь большая роль отводится именно защитной функции элементов наружного освещения.
Обратите внимание! Для совещания улиц могут использоваться любые типы светильников и разные источники питания. При этом они должны отвечать определенным требованиям, для работы на улице. Наиболее часто светильники наружного типа работы устанавливаются на металлических или железобетонных опорах, которые тянутся вдоль дорог и трауров
В последнее время все чаще для организации наружного освещения используются металлические опоры. Это связано со следующими преимуществами таких видов опор:
Наиболее часто светильники наружного типа работы устанавливаются на металлических или железобетонных опорах, которые тянутся вдоль дорог и трауров. В последнее время все чаще для организации наружного освещения используются металлические опоры. Это связано со следующими преимуществами таких видов опор:
- возможность применять в различных климатических зонах;
- такие опоры могут выдержать большую статическую нагрузку;
- имеют красивый и эстетичный внешний вид;
- срок службы более продолжительный, чем у железобетонных конструкций;
Обратите внимание! Металлические опоры для наружного освещения могут прослужить до 75 лет! Конечно, при условии, что они, как и установленные на них светильники, имеют качественное заземление, проведенное по нормам, установленных ПУЭ. универсальность. На них могут устанавливаться любые лампы уличного типа
На них могут устанавливаться любые лампы уличного типа
универсальность. На них могут устанавливаться любые лампы уличного типа.


Металлические опоры на дорогах
Типы заземляющих систем и их обозначение
При маркировке используется латиница, где буква I означает «изолированный, изоляция», N-«нейтраль», Т – «заземление», С – объединение функционального и защитного «0», S – их раздельная работа. Сегодня используются системы:
- ТТ: защита опор за городом;
- IT и TN: защита с использованием изолированной нейтрали (подробнее об этом в разделе «железобетонные конструкции») для мачт освещения и ЛЭП;
Формирование контура заземления во многом зависит от материала изготовления опоры. Но в любом случае сборка цепи заземления: крепление спуска, соединение с крюками целесообразно производить до вертикальной установки готового столба, еще на этапе его сборки.


Особенности подстанций
Все ранее описанное относится и к подстанциям, несмотря на то, что они находятся под крышей. Исключение составляет лишь то, что там довольно часто или постоянно находятся люди, а, следовательно, к их заземлению предъявляются особые требования.
В общем случае заземление подстанции состоит из следующих элементов:
- внутренний контур;
- внешний контур;
- устройство молниезащиты объекта.
Внутренний контур заземления подстанции обеспечивает простое и надежное соединение с землей всех устройств, находящихся внутри подстанции. Для этого по периметру всех помещений объекта на высоте 40 см от пола дюбелями закрепляют стальную полосу. Контуры всех помещений, а также и их составные части соединяются сваркой или резьбовыми соединениями, если таковые предусмотрены. Все металлические части, непредназначенные для прохождения тока (корпуса приборов, ограждения, люки и подобное тому), соединяются с этой шиной. Подобные полосы оснащаются резьбовыми соединениями с шайбами увеличенной ширины и гайками типа «барашек». Это позволяет получить надежное переносное заземление. Нулевая шина силового трансформатора, учитывая схему с глухозаземленной нейтралью, соединяется с полученным контуром.
Варианты подключения
В зависимости от состава и удельного сопротивления грунта применяется заземлитель с вертикальным или горизонтальным расположением электродов.
Если проводимость нижних слоев грунта ниже, чем верхних, рекомендована установка заземлителей с вертикально расположенными электродами. При небольшой занимаемой площади они обеспечивают малое сопротивление растеканию тока и способствуют лучшему отводу импульсных токов при попадании молнии в опору. Электроды углубляются на 3 м. Высота над уровнем грунта — 0,5 м.
При высокой проводимости верхних слоев грунта, в каменистых и скальных грунтах, где невозможно заглубление вертикальных электродов, допускается применение горизонтальных протяженных электродов. Электроды располагаются на глубине 0,5 м, а на вспахиваемых участках углубляются на 1 м.
Важно! При повышенном удельном сопротивлении грунтов целесообразно применение противовесов — непрерывных горизонтальных электродов, соединяющих сразу несколько опор.


Из чего состоит заземление
- Внешний контур заземления. Располагается за пределами помещений, непосредственно в грунте. Представляет собой пространственную конструкцию из электродов (заземлителей), соединенных между собой неразделимым проводником.
- Внутренний контур заземления. Токопроводящая шина, размещенная внутри здания. Охватывает периметр каждого помещения. К этому устройству подсоединяются все электроустановки. Вместо внутреннего контура может быть установлен щиток заземления.
- Заземляющие проводники. Соединительные линии, предназначенные для подключения электроустановок непосредственно к заземлителю, или внутреннему контуру заземления.
Рассмотри эти компоненты подробнее.
Внешний, или наружный контур
Монтаж контура заземления зависит от внешних условий. Прежде чем начать расчет, и выполнить проектный чертеж, необходимо знать параметры грунта, в котором будут установлены заземлители. Если вы сами строили дом, эти характеристики известны. В противном случае лучше вызвать геодезистов, для получения заключения по грунту.
Какие бывают грунты, и как они влияют на качество заземления? Примерное удельное сопротивление каждого типа грунта. Чем оно ниже, тем лучше проводимость.
- Глина пластичная, торф = 20–30 Ωм·м
- Суглинок пластичный, зольные грунты, пепел, классическая садовая земля = 30–40 Ом·м
- Чернозем, глинистые сланцы, полутвердая глина = 50–60 Ом·м
Это лучшая среда для того, чтобы установить наружный контур заземления. Сопротивление растекания тока будет достаточно низким даже при малом содержании влаги. А в этих грунтах естественная влажность обычно выше среднего.
Полутвердый суглинок, смесь глины и песка, влажная супесь — 100–150 Ом·м
Сопротивление немного выше, но при нормальной влажности параметры заземления не выйдут за нормативы. Если в регионе установки установится продолжительная сухая погода, необходимо принимать меры к принудительному увлажнению мест установки заземлителей.
Глинистый гравий, супесок, влажный (постоянно) песок = 300–500 Ом·м
Гравий, скала, сухой песок – даже при высокой общей влажности, заземление в такой почве будет неэффективным. Для соблюдения нормативов, придется устанавливать глубинные заземлители.
Многие владельцы объектов, экономя «на спичках», просто не понимают, для чего нужен контур заземления. Его задача при соединении фазы с землей обеспечить максимальную величину тока короткого замыкания. Только в этом случае быстро сработают устройства защитного отключения. Этого невозможно достичь, если сопротивление растекания тока будет высоким.
Определившись с грунтом, вы сможете выбрать тип, и самое главное — размер заземлителей. Предварительный расчет параметров можно выполнить по формуле:
Расчет приведен для вертикально установленных заземлителей.
Расшифровка величин формулы:
- R0 — полученное после вычисления сопротивление одного заземлителя (электрода) в омах.
- Рэкв — удельное сопротивление грунта, см. информацию выше.
- L — общая длина каждого электрода в контуре.
- d — диаметр электрода (если сечение круглое).
- Т — вычисленное расстояние от центра электрода до поверхности земли.
Задавая известные данные, а также меняя соотношение величин, вы должны добиться значения для одного электрода порядка 30 Ом.
Если установка вертикальных заземлителей невозможна (по причине качества грунта), можно рассчитать величину сопротивления горизонтальных заземлителей.
Поэтому лучше потратить больше времени на забивание вертикальных стержней, чем следить за барометром и влажностью воздуха.
И все же приводим формулу расчета горизонтальных заземлителей.
Соответственно, расшифровка дополнительных величин:
- Rв — полученное после вычисления сопротивление одного заземлителя (электрода) в омах.
- b — ширина электрода — заземлителя.
- ψ — коэффициент, зависящий от погодного сезона. Данные можно взять в таблице:
ɳГ — так называемый коэффициент спроса горизонтально расположенных электродов. Не вдаваясь в подробности, получаем цифры из таблицы на иллюстрации:
Предварительный расчет сопротивления необходим не только для правильного планирования закупок материала: хотя будет обидно, если вам не хватит для завершения работ, пары метров электрода, а до магазина несколько десятков километров. Более-менее аккуратно оформленный план, расчеты и чертежи, пригодятся для решения бюрократических вопросов: при подписании документов о приемке объекта, или составлении ТУ с компанией энергосбыта.
Разумеется, никакой инженер не подпишет бумаги только на основании пусть и красиво исполненных чертежей. Будут произведены замеры сопротивления растекания.
Монтаж заземлителей
ОН может быть выполнен по одной из четырех схем, отличающихся друг от друга количеством лучей-ответвителей от опоры. Их количество составляет от 1 до 4 и зависит от габаритов опорной конструкции. Максимальная длина одного луча может доходить до 15 м.
Наиболее простой способ монтажа – ручной (вбивание кувалдой, молотком). Однако он используется все меньше, а при большом количестве опорных сооружений просто нерентабелен. Вертикальные заземлители чаще всего изготавливают из отбракованных труб. Способ монтажа: вдавливание или ввертывание. Для этих целей применяются специальные механизмы: например, копры, ввертыватели типа ПЗД-12. Однако чаще всего используются т. н. электрозаглубители, в состав которых входит:
- электросверлилка;
- редуктор, посредством которого частота вращения вала становится менее 100 об/мин.;
- наконечник-забурник, прикрепляемый к погружаемому электроду, рыхлящий почву, что облегчает его монтаж.
При обустройстве большого количества горизонтальных заземлителей используется экскаватор ЭТЦ 161 («Беларусь») или монтажный плуг.
При выполнении соединений предпочтение рекомендуется отдавать сварке – использование болтов и гаек дает менее надежный контакт. Но и без них тоже нельзя: метизы нужны в местах соединения спуска с заземлителем, чтобы была возможность подключения контрольных приборов без подъема на мачту и отключения линии. Места сопряжений подлежат обязательной обработке антикоррозийными составами: рекомендуется использовать битумный лак. В окраске элементы заземлителя не нуждаются. На последнем этапе траншея с установленным заземлителем засыпается грунтом с последующим его уплотнением.
Обобщенные основные требования к обустройству заземления опор освещения
- при выборе типа конструкции заземлителя учитывайте мощность осветительной сети и свойства почвы: ее влажность;
- при установке опор в грунт с высоким сопротивлением применяйте противовесы: стержни-электроды, горизонтально размещенные между мачтами;
- наименьшее сечение заземляющей магистрали – 100 кв. мм, если имеется сочетание с молниезащитой, — 160 кв. мм;
- сопротивление повторного заземления: не более 10 Ом;
- для сухой почвы диаметр заземляющих элементов должен превышать минимальные значения на 2-3 мм, для влажной – в 2 раза.
Заземляющий контур: правила ПУЭ
Для обеспечения безопасного использования различных электроприборов и установок, используют заземление. Данное устройство используют для уравнивания электрических потенциалов.
Особенности конструкции заземления:
- Расположение;
- Выбор материала;
- Устройство.
Располагают заземляющие контуры двумя основными способами: пояс вокруг здания или отдельно стоящий заземляющий контур.
Конструктивно данные контуры выполняются следующим образом. Если контур располагается вокруг здания, по периметру в землю вбиваются заземлители, с шагом не более 2, 75 метра. Далее они соединяются металлической половой посредством сварки.
От данного контура, к главной заземляющей шине прокладывается заземляющий проводник. Если контур отдельный или дополнительный, то в землю забиваются три заземлителя образующие равносторонний треугольник.
Материал для контура заземления обычно металл. В качестве заземлителей используют металлические пруты или уголки. В качестве соединителя, используется металлическая полоса. Подключение заземляющего провода к контуру производится только при помощи медной перемычки.
Устройство контура производится следующим образом. По периметру здания или равносторонним треугольником, выкапывается траншея, глубина которой составляет не менее 40 см.
В грунт забиваются заземлители. Длина каждого заземлителя должна быть не менее 3 метров. После, используя сварочный аппарат, и металлическую полосу, заземлители соединяются в единый контур. В любом удобном месте, к контуру прикрепляется медная пластина, к которой подключается заземляющий проводник.

















