- Статья
- Видео
Что важно знать?
Помимо нюансов и функциональности помещения, следует учитывать нормы и правила установки. Например, по евростандарту расстояние от розетки к двери должно превышать 10 см и высота не должна превышать 90 см от пола.
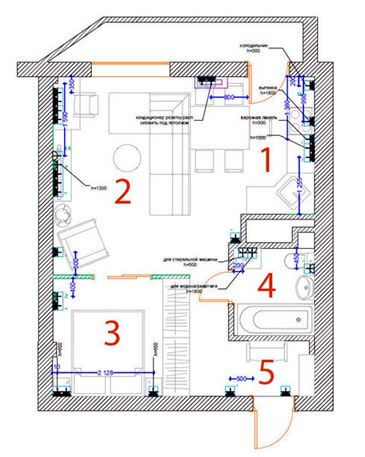
Рассмотреть, как правильно разместить розетки своими руками можно на простом примере. На схеме ниже изображена обычная двухкомнатная квартира:

где:
- Кухня
- Гостиная
- Спальня
- Совмещенный санузел
- Прихожая
Установка и расположение электрофурнитуры руководствуется такими нормативными документами, как СНиП, ПУЭ, и ГОСТ. Узнать о том, какая должна быть высота установки розеток и выключателей света, вы можете из нашей статьи.
Правила размещения
Кухня
В кухне есть много бытовой техники, как больших размеров, так и незначительных. Поэтому начинать проектирование устройств необходимо с расположения всех бытовых и электронных приборов в помещении. Основная часть техники находится на кухонном гарнитуре. Существует несколько правил, как расположить розетки на кухонном фартуке:
- Для встраиваемой техники розетки лучше расположить за стенками соседних шкафов. Запрещено размещение устройства сразу за электроприборами.
- Для вытяжки такой элемент устанавливается на расстоянии в 60 см от верхней части кухонного шкафа.
- Размещение розеток над столешницей необходимо для подключения мелких бытовых приборов. Это удобное положение позволяет подключать блендер или электрочайник. Как правило, их устанавливают на высоте до 30 см от рабочей поверхности.


При этом не стоит забывать про размещение розетки для холодильника, духового шкафа и варочной поверхности. Использовать двойную розетку для подключения варочной панели и духового шкафа не допускается, т.к. она попросту не выдержит нагрузку. Можно разместить один или два элемента недалеко от обеденного стола.
На видео ниже наглядно демонстрируется правильное расположение электрических точек на кухне:
Гостиная
В зале или в гостиной существует четыре варианта для того, чтобы расположить розетки. К этим зонам относят:
- Дверной проем. Установка в этом месте необходима для того чтобы была возможность подключить незначительные бытовые и электроприборы. Например, радиатор отопления или пылесос. Расположение устройства должно соответствовать нормам, а именно на 10 см от двери и на 30 см от пола.
- Зона телевизора. В этом случае размещение устройства будет следующим: либо у подвесного телевизора на стене, либо за телевизором, чтобы техника их смогла спрятать, и чтобы не видно было проводов.


- В диванной зоне. Расположить розетки в этой зоне следует так, чтобы была возможность подключать зарядные устройства для телефонов и ноутбуков. Стоит помнить и про размещение электрокаминов, светильников, торшеров и прочих мелких и необходимых деталей. Также необходим разъем и для кондиционера.


- У рабочего стола. Бывают случаи, когда гостиную используют в качестве кабинета. Тогда необходимо увеличить количество разъемов для питания. Следует расположить розетки для настольной лампы и для компьютера или ноутбука. На рисунке указано расстояние от столешницы к электрофурнитуре.


Про удобное размещение розеток за навесным телевизором мастер рассказывается на видео уроке:
Спальня
Расположить розетки в спальне можно по нескольким зонам, на которые условно делиться любая спальная комната. В первую очередь их устанавливают у кровати и у прикроватных тумбочек. Это расположение объясняется тем, что возле кровати всегда должен быть светильник или бра, под которым можно почитать на ночь книгу или газету. На схеме указывается приблизительная схема расположения элементов и на каком расстоянии они должны находиться от мебели.


Если в спальне есть письменный стол, то понадобятся две розетки: одна для компьютера, а другая для настольной лампы. Расположить их лучше в районе 20 см от поверхности стола. А если в комнате планируется установка телевизора, то необходимо разместить еще 3-4 разъема на высоте 130 см от пола. Чтобы провода не мешались, их лучше скрыть телевизором. О том, как спрятать провода в квартире, читайте в нашей статье.
Не стоит забывать и про дверной проем. Расположение розеточных точек у дверей также необходимо. Они нужны для подключения пылесоса или радиатора отопления.
О том, как правильно расположить розетки в спальне рассказывается на видео:
Ванная комната
Наличие розетки в ванной комнате – это не только комфорт и удобство, но еще и крайняя необходимость. Согласно Правилам устройства электроустановок розетки должны находиться на расстоянии 60 см от ванной или душевой кабинки. Так как эта комната является самой влажной, то здесь расположить устройства необходимо в минимальном количестве.


В совмещенном санузле можно расположить розетки для фена, бритвы или плойки. Как правило, их устанавливают недалеко от раковины, рядом с зеркалом. К сожалению, и возле воды. Поэтому обычная конструкция здесь не подойдет, необходимо устанавливать влагоустойчивый корпус, как на фото ниже:


В ее комплектацию входит крышка, которая способна закрывать контакты. Степень защиты электроустановочного устройства должна быть не ниже ip44. Также следует учитывать, что запрещено использовать розетки со схемой подключения без наличия устройства защитного отключения (УЗО).
Про правильное размещение электроточек в ванной рассказывается в этом видео примере:
Возможно вам также будет интересно узнать о том, как расположить светильники на потолке. Простые советы позволят сделать грамотное освещение в квартире либо частном доме!
Прихожая
Любая квартира включает в себя комнату, которая называется прихожей. Именно в нее в первую очередь входит человек. И в ней также нужно уметь правильно разместить электроустановочные устройства. Как правило, двух розеток на такую комнату бывает вполне достаточно. Ведь в прихожей в основном пользуются сушилкой для обуви либо выполняют подключение дверного звонка или пылесоса.
На схема указывается, как расположить розетки и какое расстояние от окон и углов должно быть:


Любая квартира индивидуальная. Поэтому для каждой комнаты следует разрабатывать отдельный план – схему расположения всех электроустановочных механизмов. Ведь в каждом доме количество бытовых приборов совершенно разное, но при проекте лучше устанавливать электрические точки с запасом, чтобы со временем все снова не переделывать или же не использовать удлинители.
Напоследок рекомендуем просмотреть полезное видео, на котором рассматриваются ошибки размещения выключателей света и розеток в квартире:
Это все, что мы хотели рассказать вам о том, как расположить розетки в квартире. Надеемся, наши советы помогли вам определиться с наиболее удобным и правильном местом размещения электрических точек в комнатах!
Наверняка вы не знаете:
- Как разметить стены под проводку
- Типичные ошибки при электромонтаже
- Как сделать заземление в квартире