Электрик в доме
Энциклопедия об электричестве от А до Я
Каталог мастеров
Найдите лучшего мастера или фирму в своем городе
Гофрированная труба для электропроводки
Гофрированная трубка для проводов, в последнее время находит все большее применение. Ее используют, как дополнительное средство защиты проводников от механических воздействий, в качестве дополнительной изоляции, как защиту от распространения горения, а также — как изделие способное значительно увеличить ремонтопригодность электрических сетей.
Но при выборе гофрированных труб, вы наверняка столкнетесь с богатым разнообразием данной продукции. Не очень сведущего человека это может загнать в тупик. Именно поэтому, в нашей статье мы расскажем о основных видах гофры, нормах ее использования и, конечно, способах монтажа.
- Виды гофры и нормы ее монтажа Виды гофрированных труб для электропроводки
- Требования по применению гофры, и нормы монтажа
Установка гофры для унитаза, как правильно соединить с канализацией
Подсоединить или поменять гофру на унитазе можно самостоятельно. Для этого нужна рулетка, сантехнический герметик. Если выполняется замена гофры, дополнительно берут молоток, зубило. Это необходимо для демонтажа унитаза. Перед началом работ отключается поток воды в сливной бачок. Если на это нет времени, можно пригласить сантехника или аналогичного специалиста.
Во время демонтажа часть воды из колена может попасть на пол. Рекомендуется подготовить ветошь.
При вертикальном выпуске унитаза
В унитазах с вертикальным выпуском монтаж гофрированной трубы нецелесообразен. Причина – в этой системе отсутствует проблема осевого смещения между выпуском унитаза и канализационной трубой. Для подключения можно использовать стандартную сантехническую манжету или жесткую трубу.
При попытке установить гофру может нарушиться герметизация. Расстояние между точками соединения в этой системе не превышает 5 см. Длина самого короткой гофрированной трубы – 150 мм. Ее монтаж будет невозможен. Дополнительно место соединения будет скрыто. Поэтому рекомендуется остановиться на варианте с жесткой трубой.
Для горизонтального типа выпуска
Надежное соединение унитаза с канализационной трубой для сантехнических приборов с горизонтальным выпуском выполняется по стандартной схеме. Сначала делается демонтаж старой гофры. С помощью ножа или стамески убирается старый герметик. Для уменьшения трения можно обработать края манжеты WD-40. После этого крепление можно легко снять.
Унитаз необходимо переставить, чтобы обеспечить свободный доступ к канализационному патрубку. Его внутренняя поверхность очищается. Для улучшения герметизации в раструб трубы можно установить обрезок пластикового патрубка. Его длина равна длине раструба. Причина – наружные манжеты (несколько рядов уплотнительных колец) будут лучше прижиматься.
Пошаговая инструкция по монтажу гофрированной трубы на унитаз с горизонтальным выпуском.
- Демонтаж старой гофры.
- Снятие креплений основания унитаза. Его можно поставить пока в сторону.
- Подготовка канализационного патрубка – проверка размеров, очистка поверхности.
- Расчет оптимального расстояния от стояка до выпускного отверстия.
- Вставить гофру в патрубок стояка. Она должна зайти до упора. Иначе возможны протечки.
- Унитаз можно ставить на место, манжету нужно натянуть до упора.
- Нанесение нескольких слоев сантехнического герметика на места стыков. Замазать составом можно в несколько слоев.
- Проверка. Имитируется максимальная нагрузка – в унитаз сливается несколько ведер воды, проверяется отсутствие протечек в гофре.
После этого выполняется окончательный монтаж унитаза, крепление его основания к полу. В течение нескольких дней проверяется герметизация системы. Она не должна пропускать влагу, отсутствует неприятный запах из фанового стояка.
Если расстояние между сантехническим прибором и стояком небольшое в моделях с горизонтальным выпуском гофра может сильно изгибаться в месте стыка с унитазом. Выход – надеть угловой переходник 45°.
Установка гофры на унитаз с косым выпуском
Для надежного подсоединения унитаза с косым выпуском к канализационной трубе можно использовать вышеописанную схему. Однако в таких моделях надевать гофру будет труднее. Причина – длина выпуска унитаза в верхней и нижней части отличается. Сложно обеспечить надежность соединения.
Выход – одевать дополнительный хомут поверх манжеты
Важно не сильно передавить пластик, иначе может произойти обратная ситуация – нарушение герметичности. Из-за постоянной влаги хомут будет относительно быстро ржаветь
Поэтому каждые 6-8 месяцев рекомендуется его замена.
Унитазы с косым выпуском обеспечивают оптимальный угол соединения с системой канализации. В таких моделях реже всего возникают протечки и засоры, так как центральные оси гофры, выпуска и патрубка стояка почти совпадают.
Порядок установки
Операция замены гибкого фитинга на унитазе состоит из следующих этапов:
- съём старой гофры;
- подготовка посадочных мест к монтажу;
- установка новой гибкой трубы;
- герметизация мест соединения снаружи.
Как демонтировать старый соединитель
Если канализация смонтирована из пластиковых труб, то съём изношенной гофры прост даже в ситуации, когда сделать это нужно без демонтажа унитаза. Для соединения фитинга с такой фановой системой редко используют дополнительно герметики, и демонтаж переходника сводится к элементарным операциям.

Прежде всего нужно перекрыть поступление в унитаз воды и опорожнить сливной бачок. Съём фитинга начинают со стороны подключения к санприбору. Гофрированный участок сжимают в сторону канализации, после чего стягивают манжету со слива унитаза, и вынимают из раструба другой конец изделия.

Когда унитаз расположен близко к приёмной горловине, а гофра в рабочем положении уже сжата, то для упрощения демонтажа её разрезают поперёк. Если старая манжету не стягивается с патрубка, её тоже можно надрезать ножовочным полотном по металлу.
На чугунной фановой системе место подключения к ней гофры может быть дополнительно покрыто снаружи слоем цементного раствора или другого герметизирующего состава.

Здесь при съёме фитинга хороши только те способы, которые не причинят вреда унитазу — раствор можно осторожно покрошить с помощью слесарной отвёртки и молотка, а силикон подрезать узким ножом. После оголения соединений с канализацией и унитазом фитинг демонтируют, а открывшиеся посадочные места тщательно очищают от старых уплотнителей и герметиков, иначе их фрагменты будут помехой герметичности нового подключения
После оголения соединений с канализацией и унитазом фитинг демонтируют, а открывшиеся посадочные места тщательно очищают от старых уплотнителей и герметиков, иначе их фрагменты будут помехой герметичности нового подключения.
Как установить
Устанавливают гофру в обратной последовательности.
Патрубок с поперечными уплотнительными кольцами вставляют в приёмную горловину трубы. Не будет лишним нанести перед этим на кольца герметик – это убережёт от протечки при засорении стояка на нижних этажах. Складки фитинга прижимают к раструбу, после чего манжету совмещают со сливом унитаза и натягивают на патрубок – сделать это будет проще, если резиновый уплотнитель смазать изнутри мыльным раствором.
С канализацией из чугунных труб операция усложняется тем, что место подключения к ней чаще всего нужно дополнительно герметизировать или устанавливать специальный переходник с чугунной сливной арматуры на пластиковую.
Как укоротить гофру
Иногда бывает, что понравившаяся в магазине модель гибкого фитинга длиннее, чем нужно. Выход из положения – укоротить гофру своими руками, и делается это следующим образом:
гибкую часть трубы выдёргивают из манжеты (заводское соединение — клеевое), и освободившийся монтажный паз очищают от остатков клея;

- фитинг примеряют по месту и со стороны свободного конца намечают линию поперечного реза;
- от трубы отрезают излишек длины (в армированных изделиях перекусить проволоку, проходящую в складках гофр по спирали);

заполнить монтажный паз манжеты герметиком и вставить туда получившийся после реза торец трубы;

после отверждения компаунда гофра готова к установке.
После того, как гибкий переходник установлен, для снижения вероятности протечки нужно промазать снаружи герметиком стыки манжеты со сливом и выпускного конца с горловиной канализации. Это не сделает гофру прочнее, но повысит герметичность соединений.
Ошибки при установке
Перечень промахов, которые допускают при монтаже гофр для унитазов, невелик, но все они чреваты неприятностями в будущем:
Небрежность при обустройстве стыков и пренебрежение дополнительной герметизацией.

Чрезмерная растянутость трубы в рабочем положении.
Увеличивает нагрузку на растяжение, со временем приводит, как минимум, к провисанию переходника, не исключён и разрыв гофры.
Излишняя сжатость гофрированной части.
Усложняет, а иногда и делает невозможной замену фитинга без демонтажа унитаза.
Острые углы в конфигурации трубы после её установки.
Резкие изгибы провоцируют засоры, разрушают гофру на наружной стороне поворота.
Образовался засор
Такая неприятная вещь, как засор в канализации, известна подавляющему большинству владельцев жилья. Особенно это актуально для квартир, где установлены старые трубы, а канализационная система используется неправильно. Появление засоров обусловлено попаданием в трубу волос, грязи, жира, а также нерастворенных моющих средств – шампуней, лосьонов, бальзамов, мыла и других.
Сначала лучше попробовать прочистить унитаз, используя вантуз. Нужно как можно более плотно установить его к сливу и нажать несколько раз. Этот способ эффективен, если засор невелик, а частицы в нем мелкие.
Если же все не так просто, и размер пробки достаточно велик, а сама она покрыта слоем жира, то вантуз бесполезен. Можно воспользоваться химическим веществом для прочистки слива. Таких средств в настоящее время довольно много в соответствующих магазинах. В их состав, как правило, входят кислоты и щелочи, которые растворяют засоры в трубе.
Такое средство просто заливают в трубу. Чтобы растворить пробку, нужно подождать не менее 4-5 часов. После этого в трубу вливают горячую воду. Лучше всего делать это на ночь, так как именно в это время сантехникой пользуются меньше всего, и у средства будет достаточно времени, чтобы прочистить засор.
Можно воспользоваться смесью соды и уксуса (на 1 пачку нужно взять 1 бутылку). Эффект от такой смеси будет аналогичным химическому средству. После использования как готового, так и сделанного самостоятельно раствора необходимо также применить вантуз.
Все перечисленные способы хороши для удаления свежих засоров. В случае образования окаменелостей в старых трубах они вряд ли помогут. Тогда может пригодиться металлический трос. Его помещают в трубу и вращают, постепенно двигаясь вглубь. Это может помочь при жировых или волосяных засорах, но, если в унитаз были слиты, например, испортившиеся соленые огурцы, или выброшена гигиеническая прокладка, трос также бессилен.
Если от засора избавиться не вышло, лучше попросить о помощи профессионалов. Нужно позвонить в жилищное управление и оставить заявку. Существуют также платные службы, которые, как правило, реагируют более оперативно и имеют при себе все необходимые инструменты для устранения проблем. В сложных случаях засоры прочищаются при помощи специального гидропневмоимпульсивного оборудования.
Когда имеет смысл ставить именно гофру?
Не всегда необходимо использовать именно гофру. Нередко схема подключения не меняется, и можно обойтись обычными пластиковыми комплектующими канализации. Но существуют ситуации, когда необходимо подсоединить унитаз к канализации именно гофрой:
- если после ремонта уровень пола туалета изменился, и раструб канализации не совпадает по уровню с выпуском унитаза;
- если выпуск современной модели не совпадает с выпуском демонтированного, а системы сливной канализации в доме не менялись (старая канализация монтировалась в расчете на унитаз с косым выпуском, а современные модели имеют прямой выпуск);
- диаметр выпускного отверстия санприбора и канализационной трубы не совпадает;
- для временного подключения – если ремонт еще идет, а горшком необходимо пользоваться.
Преимущества:
- невысокая цена;
- простой монтаж;
- возможность использования в сложных случаях, когда сделать выпуск с помощью труб или отводов невозможно.
Недостатки гофры:
- основным недостатком гофры является невысокая прочность. Ее может повредить кусок стекла или обломок керамической плитки, случайно попавший в сток, или упавший предмет;
- пластик не слишком устойчив к горячему, и вылитый кипяток может деформировать пластик;
- если гофру сильно изогнуть, в ней может возникнуть засор;
- длинная гофра может провиснуть под весом ее содержимого, со временем может возникнуть засор; в таком случае необходимо установить подпорки;
- гофра не слишком эстетична;
- постоянное использование средств для прочистки канализации может привести к истончению стенок переходника и образованию протечек;
- через растянутый пластик может просвечивать черный налет на стенках;
- такой переходник нельзя располагать внутри стены.
Назначение приспособления
Монтажники и потребители быстро оценили преимущества гофрированной трубы перед другими средствами изоляции, и она стала востребованной сразу после появления. Зачем нужна гофра для электротехнического монтажа? Она создает такие условия для эксплуатации сетей:
- упрощает монтаж — для замены отслуживший кабель вытаскивается из рукава и протягивается новый, нет необходимости разбивать весь шов в стене по ходу провода;
- защищает телевизионные, компьютерные, электрические сети от ударов, вибраций, влаги и пыли;
- негорючая гофра препятствует появлению пожара вследствие короткого замыкания в цепи, она необходима для проводки внутри деревянного дома.
Кабель в гофре укладывают под пол или стяжку, потолок, отделочные материалы, под землю и прокладывают воздушным путем. При демонтаже легче всего извлекаются из гофры гибкие слаботочные провода, а толстый медный можно вытащить, только если прокладка осуществлена по прямой линии.
Гофрированные трубы имеют такие преимущества:
- гибкость и возможность укладки без применения соединительных поворотов;
- простота монтажа и обслуживания;
- высокие эксплуатационные свойства;
- доступные цены;
- разнообразие видов.
В помещениях гофру можно не использовать, если провод находится в технологическом канале и когда кабель имеет двойную изоляцию.
Длина гофры для унитаза по ГОСТу
Производители гофр для подсоединения санузла к канализации придерживаются стандартных размеров. Есть два варианта: короткая гофра или длинная.
Короткая и минимальная


В сложенном виде короткая гофра для санузла имеет длину 212 мм и растягивается до 320 мм.
Таким образом, минимальное расстояние от унитаза до канализационной трубы может составлять всего 215–220 мм.
На максимальную длину изделие вытягивать не рекомендуется, так как это увеличивает вероятность протечки, то есть максимально допустимая длина короткого рукава составляет 290–300 мм.
Длинная
Такая гибкая труба для подключения санузла в сложенном состоянии имеет длину 285 мм и растягивается до 50 сантиметров. Для применения длинной гофры промежуток между канализационной трубой и выпуском туалета может составлять от 29 см, но, как правило, при расстоянии до 30 см используют короткий патрубок.
Можно ли уменьшить, укоротить до 100 м нестандартные по размеру


Иногда случается, что стандартная короткая гофра бывает слишком длинная для подключения санузла. Первая мысль: «А что если укоротить шланг?».
Теоретически, уменьшить длину рукава соединения возможно, но это довольно трудоёмкий процесс, который требует определённых навыков и знаний.
Скорее всего, изделие просто придёт в негодность и его придётся выбросить. Поэтому целесообразнее подобрать другой способ подключения туалета, например, применить эксцентрик или патрубок.
Внимание! Хоть гофра для унитаза и считается самым распространённым соединением, но не во всех случаях её необходимо устанавливать. Проконсультируйтесь у продавца насчёт конкретной ситуации, а если не уверены в правильности выбора — пригласите сантехника, специалист подберёт максимально эффективный и надёжный вариант подключения санузла к канализации
Проконсультируйтесь у продавца насчёт конкретной ситуации, а если не уверены в правильности выбора — пригласите сантехника, специалист подберёт максимально эффективный и надёжный вариант подключения санузла к канализации.
Расстояние от проводки до потолка
Четких требований, регламентирующих расстояние от кабеля до ПВХ-пленки нет. Оптимальная дистанция подбирается с учетом ряда факторов:
p, blockquote 90,0,0,0,0 —>
- общей высоты потолков;
- способа монтажа разводки;
- вида крепежного профиля;
- мощности кабелей и осветительных приборов;
- высоты софитов;
- качества ПВХ-пленки;
- уровня перепада плит перекрытия.
При подборе оптимальной дистанции нужно руководствоваться не только эстетическими соображениями, но и нормами безопасности — а они гласят, что расстояние от кабеля до пленки должно быть не менее 3 см.
Также при планировании проводки нужно учитывать особенности ПВХ-потолков. Так, если пленка имеет шов, то осветительный прибор не должен находиться вблизи шва, расстояние до стыка должно быть не менее 15 см.
Как рассчитать диаметр в зависимости от специфики использования конструкций
Параметры канализационных труб во многом зависят от того, где именно они будут монтироваться. Для установки системы в квартире или частном доме со средним количеством сантехнического оборудования достаточно конструкции размером 100 мм.
Каким должен быть диаметр канализационных труб на кухне? Для раковины подойдут конструкции размером 40-50 мм. 50 мм – это оптимальный параметр изделий для установки на кухне. Во-первых, под него рассчитаны фасонные части раковины. Такие параметры позволяют добиться максимальной совместимости коммуникаций. Во-вторых, он обеспечивает качественный отводов стоков с раковины на кухне.
В ванных комнатах достаточный диаметр труб равняется 50 мм. Этого достаточно для обеспечения нужной пропускной способности. Параметры установки конструкции под стиральную машину зависят от ее технических характеристик. Размеры изделия для слива не должны быть меньше размеров сливного шланга стирального оборудования.


Обычно больше всего сантехнических приборов располагается на кухне. Для мойки и раковины достаточно будет отвод с размером 50 мм. Для стиральной машины хватит 32 мм. Для посудомоечного оборудования на кухне потребуется конструкция размером не менее 40 мм.
Увидеть, какие изделия лучше монтировать под те или иные нужды, вы можете на фото.


Дополнительные рекомендации
Знание нужных диаметров канализационных труб для унитаза, ванны и так далее – это еще не все
Важно также знать и информацию об особенностях тех или иных конструкций, специфике их установки:
- Внутренние параметры конструкций из чугуна постепенно уменьшаются из-за отложений и образования ила;
- Конструкции из пластика свои внутренние параметры сохраняют даже после многих лет эксплуатации благодаря гладкой поверхности, на которой не скапливается жир и иные отложения;
- Для установки систем в 5-этажном доме применяются конструкции размером 100 мм, для многоэтажных зданий – 150 мм.


Предоставленную информацию о рекомендуемых параметрах канализационных конструкций вы можете дополнить просмотром фото.
Практические рекомендации
Не растягивайте гофру до того, как установите ее на унитаз. Делать это можно только непосредственно перед началом монтажных работ. Если вы растяните гофру слишком сильно, будет трудно вернуть ее в исходное состояние.
Не используйте гофрированную трубу в качестве дополнительной полочки для различных хозяйственных вещей
Если поставить на нее тяжелый предмет, она может лопнуть.
При покупке гофры обращайте внимание на толщину стенок: чем она больше, тем дольше прослужит изделие. Кроме того, старайтесь покупать продукцию европейских производителей
Они стоят дороже, но качество ее существенно выше, чем у отечественных и китайских аналогов. Если вы счастливый обладатель собственного дома, то вам следует серьезно задуматься о необходимости применения пластиковой гофрированной трубы. Дело в том, что мыши, крысы и прочие мелкие грызуны считают пластик очень лакомым продуктом. Если эти незваные гости замечены у вас в доме, то вам лучше остановить свой выбор на металлических трубах.
Статья по теме: Делаем шезлонг из дерева своими руками: ход работ, чертежи и фото


Гофрированная труба для унитаза может стать настоящим спасением в трудных ситуациях, связанных с несоответствием параметров подключаемого оборудования. Как и любое другое современное техническое решение, она имеет свои достоинства и свои недостатки. Использовать легкую и эластичную гофру или воспользоваться более громоздкими, до и более долговечными методами подключения – решать вам. Но, каким бы ни было ваше решение, надеемся, что наша статья помогла вам сделать правильный выбор.
Самые лучшие посты
- Как сделать короб из гипсокартона в ванной – пошаговая инструкция
- Фигуры из гипсокартона или как сделать интерьер стильным и модным
- Декоративный угловой камин из гипсокартона своими руками
- Проводка под гипсокартоном: прокладываем правильно
- Покраска гипсокартона – пошаговая инструкция
- Как стыковать гипсокартон в углах и процесс постройки декоративной ниши
- Подрозетники для гипсокартона: правильный выбор и установка
- Заделка стыков гипсокартона – рекомендации профессионалов
Гофра для проводки: нужна ли она и чем отличаются разные типы
Гофрированная труба выступает в роли дополнительной защиты при монтаже проводки. В каких случаях стоит использовать гофру, и от чего она защищает провод? Какую конкретно защиту выбрать? Подробный развернутый ответ в нашей статье.


Для монтажа электропроводки обычно используется кабель, не поддерживающий горение, например, ВВГнг или NYM. Тогда зачем дополнительно применять гофрированную трубу? От чего она может защитить и в каких случаях применяется? Мы расскажем, какие виды гофры бывают и для каких работ используются.
Подключить унитаз к гофрированной трубе
Следующие советы окажут помощь вам осуществить соединение с гофрированной трубой.
Делайте все действия поочередно, это обеспечит качественную установку.
- В канализационное отверстие вставляется гофрированная раздвижная труба, место стыка смазывается силиконом.
- Устанавливаем унитаз и производим соединение с трубой, контролируем на предмет протечек. Выливаем пара литров воды в унитаз и наблюдаем, не течет ли в месте стыка.
- Делаем разметку под сверление для установки дюбелей. Эти места совпадают с отверстиями на основании унитаза.
- Отодвигаем унитаз, дабы просверлить отверстия в нужных местах и установить дюбели.
- Ставим сантехнику на место, соединяем с гофрой, испытываем прочность соединения и заворачиваем крепления.
- Ответственный этап в проверке на уровень качества установки – опробование на стойкость. Садимся на унитаз и покачиваемся в различные стороны.
- В то время, когда изделие стоит прочно, герметизируем стыки.
Завершающим этапом станет установка сливного бачка. Инструкция, предлагающаяся к каждому изделию, окажет помощь вам подключить армированные шланги для подачи воды.
Где делать распаечные коробки?
По ПУЭ 2.1.23. распределительная коробка должна располагаться таким образом, чтобы доступ к ней был свободным. Согласно СП 76.13330.2012, недоступной коробка может быть лишь в том случае, когда провода внутри нее соединены сваркой, либо гильзами.
p, blockquote 44,0,0,0,0 —>


p, blockquote 45,0,0,0,0 —>
Поэтому лучше устанавливать распаечную коробку ниже уровня натяжного потолка. Чтобы установщики при монтаже натяжного потолка не пробили проводку, на стене нужно сделать пометки в местах пролегания кабеля (если он скрыт).
Подключение при помощи гофрированной трубы
Гофру (так сокращенно называют гофрированную трубу), предназначенную для монтажа унитаза в систему канализации используют тогда, когда другими материалами воспользоваться просто нельзя.
Монтаж выполняется следующим образом:
- устанавливают унитаз на выбранную позицию;
- определяют места сверления напольного кафельного покрытия, отмечая их простым карандашом, вставленным в отверстия, имеющиеся в сантехническом приборе;
- после нанесения разметки унитаз переставляют в другое место для того, чтобы просверлить в намеченных точках отверстия под дюбеля;
- вставляют в просверленные отверстия дюбеля, фиксируя устойчивое положение унитаза;
- один конец гофры вставляют в канализационное отверстие, смазывая место стыковки силиконовым герметиком;
- другой конец гофры надевают на выпуск унитаза;
- проводят все остальные монтажные операции и испытывают сантехнический прибор, используя его по назначению.
- проверяют надежность соединения, набрав воду в сливной бачок и выполнив контрольный слив;
- отсутствие протечек говорит о герметичном соединении всех элементов.
Проверяйте горизонтальность бетонного основания до момента установки прибора. При выявлении перепада высот заливайте самовыравнивающуюся стяжку. Иначе после установки унитаз будет шататься.


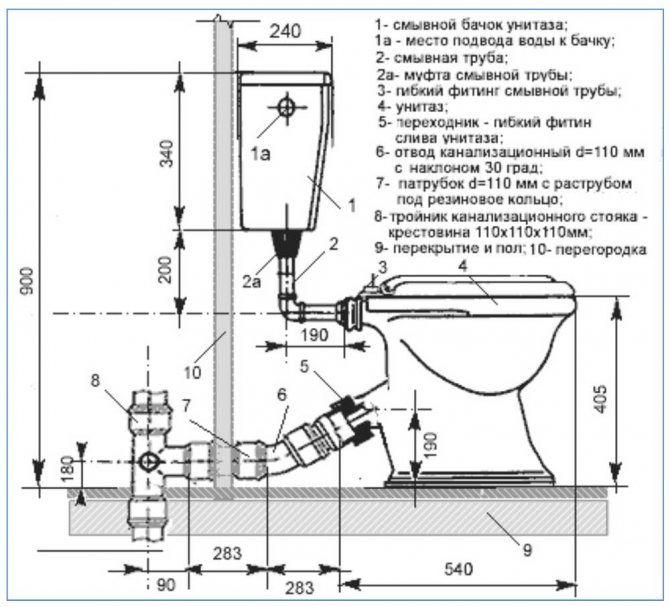
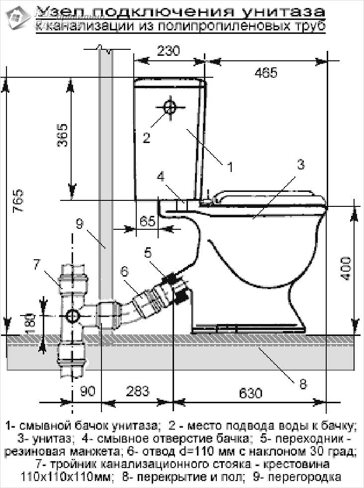
Подсоединение к выпускному патрубку унитаза гофрированной пластикой трубы, обеспечивающей соединение прибора с системой канализации
Рекомендуется промазывать шов между прибором и напольной плиткой бесцветным силиконом. Это предотвратит попадание грязи под сантехническое изделие, что облегчит в разы уборку санузла.
Виды и размеры
Унитазные гофры могут обладать такими параметрами.
- Эластичность. В зависимости от нее они бывают мягкими и жесткими. Вторые обладают более высокой прочностью и износостойкостью. Мягкую гофру можно установить на унитаз любой конфигурации и с любым типом выпуска (вертикальным, косым или горизонтальным). Чем более эластична труба, тем проще ее монтировать.
- Армирование. С его помощью пластиковые трубы укрепляют. Для этого используется стальная проволока. Армированная арматура служит дольше, но и стоит значительно дороже.
- По длине гофротрубы также различаются. В среднем диапазон варьируется от 0,2 до 0,5 м. Приобретая арматуру, нужно учесть расстояние от унитаза до того места, где гофра врезается в трубу. Лучше всегда покупать чуть более длинный канал, примерно на 5 см больше требуемого. Так проще избежать протечки.
Диаметр гофры может быть 50, 100, 200 мм. Перед покупкой нужно произвести замеры диаметра отверстия унитаза, и, исходя из полученной цифры, приобрести трубу с соответствующим сечением. Купить ее можно в любом магазине строительных и отделочных материалов.


Манжетой называют деталь сантехники, которая отвечает за обеспечение герметичного соединения унитаза и канализационного выпуска. Для каждого напольного унитаза она является необходимой. Поэтому, приобретая сантехнику, в комплект следует купить и манжету.
Модели, представленные в магазинах, различны по многим параметрам: материалу, из которого они изготовлены, диаметру, форме. Стандартный диаметр манжеты – 110 мм, но могут быть иные варианты. Необходимо узнать, каким типом выпуска оснащен унитаз, и какой у него диаметр, потому что именно на него будет крепиться манжета вторым концом.


Если классифицировать манжеты, можно выделить следующие разновидности:
- прямые гладкие;
- угловые гладкие;
- конусные;
- эксцентрические;
- гофрированные.
Бывают также комбинированные модели: с одного конца они прямые и гладкие, а с другого гофрированные.
Фановая гофра подходит для подсоединения унитазов с горизонтальным или косым выпуском. Ее устанавливают в трубу 90 мм (безманжетную) либо в трубу со срезом 110 м.
Манжета эксцентрик состоит из двух цилиндрических поверхностей, соединенных вместе, но сдвинутых друг относительно друга по продольным осям. Стандартный диаметр выпускной бесшовной трубы – 72 мм.


В соответствии с материалом, из которого они изготовлены, манжеты делятся на резиновые и пластиковые. Если модель унитаза современная, а трубы сделаны из пластика, то используют полимерные виды. А для стыка с чугунной трубой подойдет традиционная плотная резина.
Обязательно учесть форму выпускного отверстия на унитазе. Она может быть:
- вертикальной;
- горизонтальной;
- косой.


Обязательной деталью является муфта. Модели для пластиковых труб выпускаются в ограниченном количестве – всего пять видов:
- Труба/труба – изделия с гладкими стенками зафиксированы друг относительно друга резьбой. Используется для жестких пластиковых труб, надевается по очереди на оба конца.
- Коробка/труба – в трубе с одной стороны находится кабель, с другой – компрессионный зажим.
- Фитинг с разъемным соединением.
- Прозрачная труба подходит для мягких стыков гофротрубы, укрепляется посредством накручивания.
Если не хочется, чтобы беспокоили неприятные запахи, можно оснастить унитаз обратным клапаном. Он может быть установлен не только в унитазе, но и в иных сантехнических элементах, имеющих выход в канализацию.
Методы подключения унитаза к канализации
Сценарий 1
Направление раструба канализации соответствует форме выпуска унитаза; смещений по высоте нет; канализация пластиковая.
Такое соединение унитаза с фановой трубой – самый простой случай.
- Приобретаем в магазине уплотняющую манжету для выпуска унитаза.
- Зачищаем раструб канализации внутри от мусора, отложений и влаги;
- Надеваем манжету на выпуск унитаза и вставляем в раструб. Празднуем победу.


Простое и дешевое решение проблемы.
Сценарий 2
Все то же самое, но канализация чугунная.
Простейший вариант – и здесь использовать уплотнительную манжету
Однако чугунный раструб часто имеет заметные неровности, нам же важно обеспечить полную герметичность соединения. Зачем? Все те же запахи
Раз так – соединение манжеты с чугуном уплотняем силиконовым герметиком, предварительно полностью очистив внутреннюю поверхность трубы.


С чугунной канализацией пригодится герметик.
Альтернатива – замазка выпуска унитаза в раструбе канализации.
- Монтируем унитаз на место его постоянной дислокации. Разумеется, крепление сразу должно быть жестким, иначе наша замазка раскрошится до полного застывания.
- Разводим цемент с песком в пропорции 1/1 или берем чистый цемент с водой. По консистенции замазка должна быть достаточно пластичной, чтобы ее можно было вмазать внутрь раструба.
- Тщательно замазываем просвет между раструбом канализации и выпуском унитаза.
Сценарий 3
Унитаз с косым выпуском после укладки кафеля оказался выше чугунного канализационного раструба. Его выпуск не входит в трубу.
Подключение унитаза к фановой трубе в этом случае может быть выполнено с использованием участка канализационной трубы диаметром 110 миллиметров.
В идеале – полиэтиленовой.
- Отмеряем и отрезаем участок трубы, который соединит выпуск унитаза с раструбом канализации.
- Нагреваем один конец трубы над газовой конфоркой до температуры, при которой полиэтилен или поливинилхлорид размягчатся, но не будут течь.
- Натягиваем размягченную трубу на выпуск унитаза так, чтобы ее ось строго соответствовала оси выпуска, и даем ей остыть. Соединение будет надежным и герметичным.
- Для соединения трубы с канализацией опять-таки используем манжету с герметиком для канализационных труб: или замазку цементом.


Альтернатива – специальная манжета-эксцентрик.
Сценарий 4
Форма выпуска унитаза не соответствует раструбу канализации либо унитаз монтируется со значительным смещением от него.
От переборки канализационных труб избавят фановый отвод для унитаза или гофра – несложные приспособления из пластика и резины.
Их соединение и с унитазом, и с канализацией не имеет каких-либо специфических особенностей, однако есть пара моментов, которые стоит учесть.
- Соединение с чугунным раструбом желательно уплотнять силиконовым герметиком. Причина уже упоминалась – борьба с запахами и неровная внутренняя поверхность чугунных труб.
- Гофра, соединяющая выпуск унитаза с канализацией, не должна провисать. Иначе в самой низкой ее точке будет скапливаться вода и отложения, препятствуя нормальному смыву.


Этот предмет – гибрид отвода и гофры.
Какие производители заслуживают доверия?
Не покупайте откровенно «ноунеймовскую» гофру, так как практика показала, что заявленные характеристики часто не соответствуют реальности. Из производителей, которые заслуживают доверия, отметим следующих:
- DKC;
- IEK;
- EKF;
- KOPOS;
- ЭРА;
- Экопласт;
- РУВИНИЛ;
- NASHORN — пока в ассортименте только ПВХ гофра.
Комплектующие у них конечно дороже, чем у китайских аналогов, но качество в разы лучше. Тем более, что купить в России нет никаких проблем.
Еще немного интересного из мира электрики:
Особенности ремонта фановых систем
Монтаж внутренней системы канализации производится «в раструб». Это значительно облегчает процесс установки и демонтажа всех элементов трубопровода.
Ремонтные работы необходимы при физическом повреждении фановой или канализационной трубы. За счет отличного показателя жесткости (сопротивление труб на изгиб – 80 МПа) и длительного срока эксплуатации пластика (до 60 лет) имеется малая вероятность физического повреждения труб.
При выполнении ремонта фановых труб мастер должен учитывать следующие правила:
- окончание фановой трубы располагают таким образом, чтобы обеспечить эффективное рассеивание неприятного запаха;
- диаметр трубы должен быть таким же или больше стояка, на который выполняется установка;
- прокладывают трубу в теплых помещениях, а заканчивают монтаж в холодной зоне, так как разница температур провоцирует перепад давления в различных участках трубы.
Ремонтные работы предполагают присоединение трубы фановой к канализационному стояку. Одновременно на других стояках выполняется установка вакуумных клапанов – уплотнителей из резины, оснащенных пружинами.


Замена и ремонт фановых труб должны производиться по проектной документации, с учетом правил установки стояков в канализационной системе
В процессе работы канализационная система создает в клапане разрежение, вследствие чего он открывается и всасывает воздух из помещения. После стабилизации давления в стояке специальная пружина автоматически запирает обратный клапан, препятствуя выходу неприятного запаха в атмосферу.
Способ прокладки кабеля
Допустимы оба метода укладки проводов:
p, blockquote 83,0,0,0,0 —>
- открытый (провода с помощью стяжек или специальных дюбелей крепятся к основанию);


p, blockquote 84,0,0,0,0 —>
- закрытый (группы кабелей собираются в жгуты, которые перед креплением помещаются в гофры, либо металлорукава).


p, blockquote 85,0,0,0,0 —>
Каждый из способов имеет свои нюансы.
p, blockquote 86,0,0,0,0 —>
Открытый способ — более простой в процессе монтажа, но менее удобный в плане эксплуатации.
p, blockquote 87,0,0,0,0 —>
Закрытый — более затратный метод установки, но практичней и безопасней в дальнейшем использовании.
p, blockquote 88,0,0,0,0 —>
Важный момент: в варианте с открытым способом ни в коем случае нельзя прокладывать кабели в трещины между плитами перекрытия. В процессе усадки дом зажмет провода, жилы переломятся и придется заниматься переустановкой потолка и проводки.
Параметры различных типов труб
Параметры конструкций канализации частных домов не превышают 110 мм, многоквартирных домов – 160 мм и более. При установке канализационной системы рекомендуется использовать конструкции с одинаковыми параметрами.
Результаты подсчета во многом зависят от объема стоков
По этой причине важно провести расчет с учетом количества сантехнического оборудования
Также стоит обратить внимание на пропускную способность канализационной трубы


Перед проведением расчетов также выполняется разметка точек установки сантехнического оборудования с учетом поворотов и мест соединения. При установке системы в многоквартирном доме высчитывается множество показателей (коэффициент сопротивления, скорость транспортировки стоков и многое другое). Однако при бытовом монтаже в квартире или частном доме можно не производить таких сложных расчетов.
Трубы из разных типов материалов имеют различные диаметры:
- Пластиковые конструкции. Для внутренней системы обычно используются изделия с параметрами 32 мм, 50 мм и 110 мм. Для наружных систем подходят конструкции с параметрами от 110 мм;
- Конструкции из ПВХ. Стандартные параметры: 32 мм, 50 мм и 110 мм. Для наружных систем канализации используются конструкции параметров 110-500 мм. Толщина их стенок может достигать 15 мм;
- Чугунные конструкции. Для монтажа внутренних конструкций используются очень редко. Самые распространенные параметры: 50-300 мм. Существуют и изделия больших размеров. Параметры можно узнать, посмотрев на маркировку изделия.


Для того чтобы выбрать изделие с нужным диаметром, нужно посмотреть минимальные параметры отвода к конкретным сантехническим приборам. Вся информация дана в технической документации оборудования.
Пошаговая инструкция
План действий зависит от того, какие именно элементы включает в себя схема установки. Чаще всего натяжной потолок контактирует с люстрой, софитами и кабель каналом.
p, blockquote 95,0,0,0,0 —>
Кабель канал
Обойти кабель канал натяжным потолком можно тремя способами:
p, blockquote 96,0,0,0,0 —>
- В месте крепления профиля в стене делается штроба, в которую помещаются провода. После установки натяжного потолка видимая часть кабель канала аккуратно подрезается вровень с полотном.
- Кабель канал разбирается. Профиль крепится к стене. Провода прижимаются к профилю гарпуном и прикрываются обрезанным кабель каналом.
- Кабель канал остается нетронутым, зато в полотне делается отверстие нужного размера. Чтобы пленка не расползлась, на нее наклеивается специальная пластиковая защита (как протекторные кольца для светильников).


p, blockquote 97,0,0,0,0 —>
Подходящий метод подбирается исходя из количества и диаметра проводов и размера и расположения кабель канала.
p, blockquote 98,0,0,0,0 —>
Люстра
Подключить единственную люстру проще всего. Даже сложные модели предусматривают лишь один жгут для подключения. Поэтому для прокладки потребуется лишь одна гофрированная труба, проложенная от распределительной коробки к месту установки осветительного прибора.
p, blockquote 99,0,0,0,0 —>


p, blockquote 100,0,0,0,0 —>
Единственная сложность может возникнуть с установкой розетки на натяжном потолке.
p, blockquote 101,0,0,0,0 —>
Розетка может быть выполнена из различных материалов:
p, blockquote 102,0,0,0,0 —>
- гипса;
- дерева;
- полиуретана;
- пенопласта;
- натурального камня.
Помимо этого, все розетки делят по способу монтажа на накладные и врезные.
p, blockquote 103,0,0,0,0 —>
Врезные розетки не подходят для установки в натяжное полотно, а вот установка накладных элементов возможна.
Лучше для монтажа выбирать легкие элементы из пенопласта или полиуретана, но и более массивный декор тоже можно закрепить.
p, blockquote 105,0,0,1,0 —>
Для этого потребуется сделать надежную закладную под полотном. В местах крепежа в ПВХ-пленке делаются отверстия, защищенные от расползания протекторными кольцами. Отверстий видно не будет, их перекроет розетка.
p, blockquote 106,0,0,0,0 —>
Далее элемент крепится к закладной так же, как к обычной плите перекрытия. Главное действовать аккуратно, чтобы не испачкать и не повредить пленку.
p, blockquote 107,0,0,0,0 —>


p, blockquote 108,0,0,0,0 —>
Разводка для точечных светильников
Конструкция натяжного потолка позволяет подключать одновременно несколько различных видов освещения.
p, blockquote 109,0,0,0,0 —>
Каждая разновидность имеет свои особенности установки. Перед монтажом нужно составить подробную схему с указанием вида, размеров и количества электрических шнуров, подходящих к каждому осветительному прибору.
p, blockquote 110,0,0,0,0 —>


p, blockquote 111,0,0,0,0 —>
Схема подключения спотов на потолке должна быть составлена таким образом, чтобы выключатель разъединял фазу, а не ноль.
p, blockquote 112,0,0,0,0 —>


p, blockquote 113,0,0,0,0 —>
Следующим этапом монтажа идет нанесение меток на черновой потолок согласно составленной схеме.
p, blockquote 114,0,0,0,0 —>
Разметку лучше делать разными цветами, где каждый цвет будет обозначать жгут проводов идущий к конкретному софиту.
p, blockquote 115,0,0,0,0 —>
Подходящий кабель для точечных светильников нужно выбирать, исходя из разновидности установленных в них ламп. Для монтажа в натяжные потолки подходят три вида лампочек:
p, blockquote 116,0,0,0,0 —>
- галогенные;
- люминесцентные;
- светодиодные.
Не все софиты можно подключать к напряжению 220В, иногда сечение провода для точечных светильников нужно подбирать с учетом понижающего трансформатора.
p, blockquote 117,0,0,0,0 —>
В случае установки галогенных ламп нужно следить за тем, чтобы длина провода от трансформатора до каждого спота была приблизительно одинаковой. На их работу очень влияет падение напряжения в проводах. Одинаковая длина кабеля сделает уровень падения напряжения одинаковым во всех осветительных приборах.
p, blockquote 119,0,0,0,0 —>


p, blockquote 120,0,0,0,0 —>
С требованиями к оболочке кабеля все источники сходятся (она должна быть малодымной и негорючей), а вот пожелания, касающиеся сечения и количества жил — разнятся. Связано это с тем, что разводка проводов в бытовых помещениях выполняется из одножильного медного кабеля нужного сечения, а «хвосты» софитов выполнены из многожильных проводов.
p, blockquote 121,0,0,0,0 —>
В итоге: соединять одножильный кабель с многожильным — неудобно, а выполнять разводку из многожильных проводов — ненадежно. Поэтому в этом случае каждый решает сам, чем он готов пренебречь: личным удобством или надежностью.
p, blockquote 122,0,0,0,0 —>
Оптимальный вариант разводки — от распределительной коробки к каждому споту идет свой собственный жгут.
Иногда, в целях экономии, от коробки пускают один основной кабель к первому софиту, а остальные подсоединяют последовательно, делая разводку от предыдущего осветительного прибора. Получается аналог елочной гирлянды, когда одна перегоревшая лампочка делает неработоспособной всю цепь.
p, blockquote 124,0,0,0,0 —>


p, blockquote 125,0,0,0,0 —>
Встраиваемые светильники лучше выбирать круглой, а не квадратной формы. Это облегчит процесс монтажа.
p, blockquote 126,0,0,0,0 —>
Порядок крепления светильников показан на рисунке. При установке софита нужно следить за тем, чтобы закладная не пережимала кабель и не мешала ему.
p, blockquote 127,0,0,0,0 —>


p, blockquote 128,0,0,0,0 —>
Важный момент: просчитывая необходимое количество проводов, нужно учитывать длину «хвостов». Это означает, что на каждую единицу освещения должны идти дополнительные 25-30 см кабеля на зачистку, соединения и подрезку.
p, blockquote 129,0,0,0,0 —>

























