Электрооборудование не работает постоянно на полную мощность. Этот очевидный факт можно понять на бытовом примере. Освещение в квартире не включено круглосуточно. Утюгом мы пользуемся только тогда, когда надо погладить одежду. Чайник работает только тогда, когда нужно вскипятить воду. Аналогичным образом дело обстоит при потреблении электроэнергии в общественных и промышленных зданиях. Таким образом, понятие установленной и потребляемой (расчетной) мощности всем знакомо с детства. При проектирование электроснабжения объектов неодновременность работы оборудования учитывается при помощи понижающих коэффициентов. Существует три понижающих коэффициента с разными названиями, но смысл их одинаков — это коэффициент спроса, коэффициент неодновременности, коэффициент использования. Умножив установленную мощность оборудования на один из этих коэффициентов получают расчетную мощность и расчетный ток. По расчетному току выбирают защитно-коммутационную аппаратуру (автоматы, рубильники, УЗО и пр.) и кабели или шинопроводы.
Pрасч=K×Pуст, где Pуст — установленная мощность оборудования, Pрасч — расчетная мощность оборудования, К — коэффициент спроса/одновременности/использования.
При использовании этой, казалось бы, простой формулы на практике сталкиваются с огромным количеством нюансов. Одним из таких нюансов является определение коэффициента спроса в щитах, питающих разные типы нагрузок (освещение, розетки, технологическое, вентиляционное и сантехническое оборудование).
Дело в том, что коэффициент спроса зависит нескольких параметров:
- Мощности;
- Типа нагрузки;
- Типа здания;
- Единичной мощности электроприёмника.
Соответственно, при проектировании групповой и распределительной сети, а также схем электрических щитов это нужно учитывать. Групповые сети (кабели, питающие конечных потребителей) следует выбирать без учёта коэффициента спроса (коэффициент спроса должен быть равен единице). Распределительные сети (кабели между щитами) следует выбирать с учётом коэффициента спроса. Таким образом, расчет коэффициента спроса для щитов со смешанной нагрузкой несёт дополнительные трудности и повышает трудоёмкость расчетов.
Рассмотрим как реализован расчет электрических нагрузок в DDECAD на примере щита со смешанной нагрузкой.
Зачем нужен электропроект?


Чаще всего электропроект требуется в случае приобретения новой квартиры или при постройке частного дома, когда еще не организовано внутреннее электроснабжение и для начала монтажа электропроводки требуется присоединение к электрическим сетям. Так же электропроект потребуется во время крупного капитального ремонта квартиры, с серьезным изменением внутренней проводки.
Если вам не хватает выделенной вами изначально мощности, у вас установлены энергоемкие потребители и постоянно срабатывает защитная автоматика из-за перегрузки, в этом случае так же необходимо делать электропроект, чтоб пройти процедуру для повышения выделенной мощности для вашего объекта.
Разрешенная мощность (Выделенная мощность) – это официально заверенная поставщиком и контролирующими органами мощность, которую ваш объект может потреблять.
Во всех этих случаях разработкой электропроета должна заниматься официальная проектная организация, имеющая все необходимые лицензии и допуски на разработку проектов электроснабжения. Если компания разрабатывающая проект не будет обладать необходимой лицензией на данный вид деятельности, согласовать такой электропроект не получится.


Кроме случаев, перечисленных ранее, когда разработка проекта электроснабжения обязательна и должна быть выполнена в строго установленном порядке, для подключения объекта к электросетям или для повышения выделенной мощности, есть множество ситуаций, когда вам еще пригодится электропроект.
Так, например, при любом капитальном ремонте квартиры или дома, который уже подключен к электросетям, и величина разрешенной мощности вас устраивает, кроме перепланировки и изменения интерьера, обычно проводится соответствующая замена электропроводки и электрооборудования, изменение его количества и мест размещения.
В этом случае электропроект будет тоже чрезвычайно полезен, ведь в нем будут рассчитаны все показатели, правильно распределены все нагрузки, выбраны материалы и оборудование. Кроме этого, проект электроснабжения поможет точнее рассчитать необходимый объем работ и количество материалов, поможет электрикам и электромонтажникам не ошибиться при электромонтаже, сделает вашу квартиру или дом по-настоящему электробезопасным.
Особенности розеточных блоков


Современные розеточные блоки могут включать не только розетки с заземлением для подключения электробытового оборудования, но также телевизионные, сетевые, телефонные и радио розетки. За счет использования подобного оборудования при проектировании розеточной сети собственник может значительно экономить на электромонтажных работах. Устанавливаемые в одном месте группы розеток требуют минимальных трудовых затрат при прокладке линий электрического снабжения.
На рынке представлены розеточные блоки, предназначенные для открытого и скрытого монтажа проводки внутри помещения. Для открытого монтажа используются блоки наружной установки, которые монтируются на поверхность стены с помощью специальных негорючих прокладок. К таким блокам подводятся кабельные каналы, в которых впоследствии укладываются все электрические, сетевые и телефонные провода.
Имеются на рынке и розеточные блоки, предназначенные для использования в системах скрытой проводки. Такие блоки устанавливаются внутри стен в специальных коробах, причем на поверхности будут оставаться только внешние панели розеток. Это крайне эстетичное и технически грамотное решение для организации любой внутренней электрической системы. Очень важно правильно подобрать дизайн розеточного блока, который будет полностью соответствовать внутреннему интерьеру частного дома или офисного помещения. Наиболее привлекательно будут смотреться розетки, которые подобраны по цвету стен или плинтусов.
Большой популярностью сегодня пользуются розеточные блоки, предназначенные для подключения различного коммуникационного оборудования. Такой розеточный модуль представляет собой печатную плату, помещенную в прочный пластиковый корпус. В настоящее время такие модули повсеместно используются в офисах, так как позволяют организовать наиболее комфортные рабочие места для секретарей, операторов, референтов и других служащих.


Грамотно разработанный проект монтажа розеточной сети дает возможность собственнику экономить на используемых материалах, на длине необходимых для монтажа кабельных линий. Даже сам проект электроснабжения магазина или офиса может потребовать гораздо меньших финансовых затрат, ели линия розеток будет спроектирована грамотно.
Следует учитывать также, что любое проектирование должно проводиться с учетом всех действующих сегодня нормативных документов, регламентирующих процесс разработки проектов электроснабжения для того, чтобы создаваемая электрическая система была полностью безопасной для всех пользователей.
Ниже вы можете воспользоваться онлайн-калькулятором для расчёта стоимости проектирования сетей электроснабжения:
Из чего состоит электропроект?


Стандартный проект электроснабжения состоит из нескольких листов, это:
1. Титульный лист
2. Акт разграничения балансовой принадлежности и эксплуатационной ответственности
3. Лист общих данных и пояснительная записка
4. Однолинейная схема электроснабжения
5. План сети освещения
6. План розеточной сети
7. Схема дополнительной сети уравнивания потенциалов
8. Спецификация оборудования
Все эти листы электропроекта, содержат всю необходимую информацию, как для надзорных органов, согласовывающих данный проект, так и для электриков и электромонтажников, которые будут подключать ваш объект (квартиру, частный дом и т.д.) к электросетям и выполнять последующую электропроводку.
Все страницы проекта электроснабжения должны быть оформлены согласно ЕСКД.
ЕСКД – единая система конструкторской документации. Которая включает в себя комплекс государственных стандартов, устанавливающих единые правила и нормы по разработке, оформлению и обращению конструкторской документации, во всех областях промышленности, строительства и транспорта.
Пример электропроекта
Давайте подробнее рассмотрим каждый лист стандартного электропроекта и информацию, размещенную там.
Титульный лист электропроекта


Титульный лист электропроекта – это начальная страница, на которой помещены основные сведения, такие как: город, название проекта, наименование организации, которая делала проект, данные о заказчике, адрес объекта, подписи сторон, год создания и некоторые другие.
Акт разграничения балансовой принадлежности и эксплуатационной ответственности
В акте балансовой принадлежности инженерные сети разделяются по признаку собственности или иного законного владения, иными словами определяется кому принадлежат те или иные части инженерных сетей. В акте эксплуатационной ответственности сети разделяются по признаку возложе¬ния бремени содержания инженерных ком¬муникаций, проще говоря кто будет обслуживать те или иные участки сетей.
Чаще всего границей балансовой принадлежности является внешняя граница стены дома, а граница экс¬плуатационной ответственности может:
— устанавливаться по соглашению сторон
— совпадать с местом соединения коллек¬тивного(общедомового) прибора учета с соответствующей инженерной сетью
— совпадать с границей балансовой при¬надлежности
Пример типового акта разграничения балансовой принадлежности и эксплуатационной ответственности, вы можете найти в интернете.
Лист общих данных электропроекта и пояснительная записка


На листе общих данных электропроекта чаще всего располагаются: общее содержание проекта с нумерацией листов, ссылки на используемые стандарты, нормы и правила и общие требования которым соответствует проект.
В пояснительной записке указаны все особенности и примечания к данному электропроекту.
Однолинейная схема электроснабжения


Однолинейная схема электроснабжения – это такой вид начертания схемы электроснабжения объекта, при котором, для наглядности, трехфазное подключение представлено в виде одной линии, при этом на схеме так же размещены секции и системы шин, коммутаторы, трансформаторы и устройства защиты.
Однолинейная схема электроснабжения это один из основных элементов электропроекта, на ней указаны все приоритетные параметры данной системы электроснабжения, в числе которых: мощность, количество и номиналы защитной автоматики, с указанием нагрузок, действующих на них, количество групп оборудования, тип используемого кабеля и многое другое.
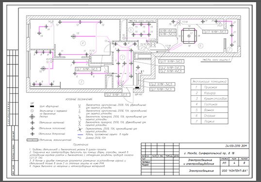
План сети освещения


План освещения электропроекта содержит выполненную в масштабе схему объекта, с обозначением на ней всех осветительных установок с электрической частью.
Проще говоря, на плане освещения показаны все осветительные приборы (люстры, бра и т.п.) и органы управления (выключатели, диммеры, переключатели и т.д.) и обозначена их связь. Так же на листе со схемой обязательно присутствуют все условные обозначения и примечания к чертежу.
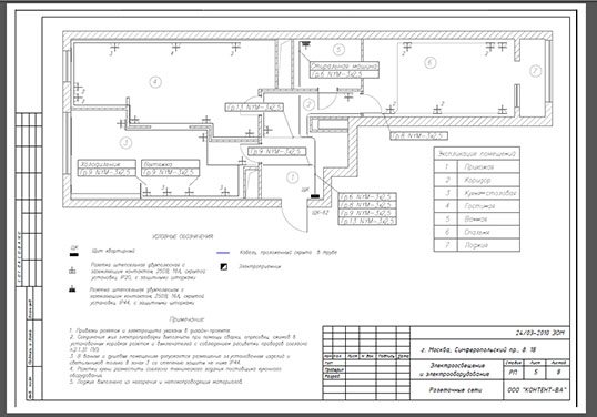
План розеточной сети


План розеточной сети содержит выполненную в масштабе схему объекта, с обозначением электрощита и всех силовых и обычных розеток объекта, различного силового оборудования (электроплиты, кондиционеров, обогревателей и т.п.).
Так же, довольно часто, план розеточной сети включает в себя розетки слаботочных сетей (тв, интернет и т.п.). На данном листе со схемой обязательно присутствуют все условные обозначения и примечания к чертежу.
Схема дополнительной системы уравнивания потенциалов


В каждой квартире должна быть организована дополнительная система уравнивания потенциалов. К элементам, входящим в нее относятся — водопроводные трубы, ванны, мойки и прочие объекты ванных комнат хорошей электропроводимости, все они должны быть подключены к шине PE или PEN в электрощите. На этом листе в проекте электроснабжения, отображены все необходимые подключения оборудования к шине PE или PEN электрощита, в рамках дополнительной системы уравнивания потенциалов.
Спецификация оборудования


На листе спецификации оборудования проекта электроснабжения находится перечень всего необходимого для реализации проекта электрооборудования, его тип, количество, номинал, рекомендуемые модели и т.д.
Вот краткое описание основных листов стандартного электропроекта. В зависимости от проектной организации и конкретного проекта, могут быть незначительные различия в компоновке листов, возможно разбиение некоторых листов на несколько, например, розеточная группа и слаботочные сети на различных листах и т.д., но в целом, структуры всех электропроектов похожи.
Расчет коэффициента спроса на щит
Расчет коэффициента спроса на щит будем выполняют в два этапа:
- Определение коэффициентов спросов для разных типов потребителей;
- Определение коэффициента спроса на щит.
Однако, технически для этого в расчетной таблице DDECAD потребуется выполнить три шага:
- Определение коэффициентов спросов для разных типов потребителей;
- Определение коэффициента спроса на щит;
- Указание коэффициентов спроса на щит и на группы.
2.1. Расчет коэффициента спроса сети освещения
Расчет коэффициента спроса для расчета питающей, распределительной сети и вводов в здания для рабочего освещения выполняются в соответствии с требованиям п.6.13 СП 31‑110‑2003 по Таблице 6.5.
Коэффициент спроса для расчета групповой сети рабочего освещения, распределительных и групповых сетей аварийного освещения принимают равным единице в соответствии с п.6.14 СП 31-110-2003.
Установленная мощность светильников рабочего освещения Pуст осв. = 7,4 кВт. Принимаем, что рассматриваемый офис относится к зданиями типа 3 по Таблице 6.5 СП 31-110-2003. В таблице данная мощность отсутствует, поэтому, в соответствии с примечанием к таблице, определяем коэффициент спроса при помощи интерполяции. Пользователи DDECAD могут легко и быстро определить коэффициент спроса при помощи встроенного в программу расчета. Получаем Kс осв. = 0,976.
2.2. Расчет коэффициента спроса розеточной сети
Расчет коэффициента спроса розеточной сети выполняют в соответствии с п.6.16 СП 31-110-2003 и Таблице 6.6. Получаем Кс роз. = 0,2.
2.3. Расчет коэффициента спроса сети питания компьютеров
Коэффициент спроса для сети питания компьютеров выполняют в соответствии с п.6.19 СП 31-110-2003 и Таблице 6.7. По п.9 Таблицы 6.7 для числа компьютеров более 5 получаем Кс ком. = 0,4.
2.4. Расчет коэффициента спроса сети питания множительной техники
Коэффициент спроса для сети питания множительной техники выполняют в соответствии с п.6.19 СП 31-110-2003 и Таблице 6.7. По п.12 Таблицы 6.7 для числа копиров менее 3 получаем Кс множ. = 0,4.
2.5. Расчет коэффициента спроса технологического оборудования
Коэффициент спроса для сети питания кухонного оборудования выполняют в соответствии с п.6.19 СП 31-110-2003 и Таблице 6.7. Примем, в общем случае, что кухонное оборудование является технологическим оборудование пищеблока общественного здания. По п.1 Таблицы 6.7 коэффициент спроса следует принять по Таблице 6.8 и п.6.21 СП 31-110-2003. Получаем Кс кух. = 0,8.
Если технологическое оборудование пищеприготовления не является оборудование пищеблока общественного здания, а находится в помещении приёма пищи небольшого офиса, то коэффициент спроса следует принимать как для розеточной сети в соответствии.
2.6. Расчет коэффициента спроса оборудования кондиционирования
Коэффициент спроса для сети питания оборудования кондиционирования выполняют в соответствии с п.6.19 СП 31-110-2003 и Таблице 6.7. По п.5 Таблицы 6.7 коэффициент спроса следует принять по поз.1 Таблицы 6.9 СП 31-110-2003. Получаем Кс конд. = 0,78.
2.7. Вычисление коэффициента спроса щита
Вычисление коэффициента спроса щита будет происходить в два этапа.
2.7.1. Определение коэффициента спроса на щит
Вносим выбранные коэффициенты спроса для каждого типа нагрузки в столбик «Коэфф. спроса», столбик «D» в Excel. Получается, что мы устанавливаем коэффициенты спроса для групповой сети. Это неверно, но это промежуточный этап, в следующем шаге мы это откорректируем.


2.7.1. Указание коэффициента спроса на щит и на группы
После внесения коэффициентов на предыдущем шаге в нижней строке мы получаем рассчитанный итоговый коэффициент спроса на щит в столбике «Коэфф. спроса», столбик «D» в Excel.
Следующим шагом мы вносим это значение в ячейку столбика «Kс на щит», столбик «N» в Excel. После этого возвращаем групповые коэффициенты спроса в исходное значение, равное единице.


Техническое задания (ТЗ) для разработки электропроекта


Если говорить коротко, то техническое задание для разработки электропроекта представляет собой схему, на которой отмечены все ваши пожелания к будущей электропроводке. Вы должны нанести на схему квартиры или дома расположения всех розеток, выключателей, светильников и т.д.
Желательно сразу продумать какие и где электроприборы будут установлены. Обязательно тщательно выбирайте расположение силовых энергоемких устройств (варочной поверхности, стиральной машины, водонагревателя и т.п.).
Если вы знаете конкретные модели того или иного оборудования, подписывайте их потребляемую мощность на схеме, ее можно узнать в паспорте к устройству.
Все тоже самое необходимо сделать со осветительным оборудованием, нанести все светильники, с количеством, типом, мощностью ламп которые будут использованы в них и органы управления светильниками (выключатели, переключатели, диммеры).
Лучше всего так же подробно отразить тип и расстановку оборудования (в т.ч. сантехнического) в ванных комнатах, для создания схемы дополнительного уравнивания потенциалов.
Вот основные данные, необходимые для эффективного технического задания, по которому без всяких трудностей сможет быть сделан электропроект.
Сохранение рисунка Microsoft Visio в различных форматах
Созданный чертеж, схему или картинку можно распечатать принтером на бумаге или сохранить в электронном виде.
Печать на принтере
Рассмотрим на примере большого документа, не вмещающегося в формат обычного листа принтера, например, А4. Выбираем кнопки «Файл», «Печать» и настраиваем необходимые параметры программы Microsoft Visio с учетом конструкции конкретного принтера.


Большой чертеж будет распечатан в масштабе на отдельных стандартных листах. Их придется склеить по заданной последовательности.
Разработка электропроекта


Заказывать разработку проекта электроснабжения лучше после создания полного дизайн-проекта вашей квартиры или дома. Это наиболее рациональный способ, ведь профессиональный дизайн-проект обычно выключает в себя расстановку мебели и техники. Оперируя этой информацией можно максимально точно и правильно расположить розетки, выключатели и осветительные приборы, а так же распределить нагрузки между ними.
Часто профессиональные дизайн-проекты уже включают в себя спецификацию всей необходимой техники, в т.ч. и силовой. Все это поможет проектировщику сделать качественный электропроект, полностью соответствующий всем предъявляемым требованиям.
Если по каким-то причинам вы не планируете заказывать дизайн-проект у профессионального дизайнера, можно составить все необходимые данные и самостоятельно, об этом мы поговорим в следующих статьях.
Конечно, у вас, скорее всего, не получится продумать и просчитать всё, сделать схему для проекта такой же отточенной и сбалансированной, как бы это сделал профессионал, но приблизится к этому вполне возможно и по силам каждому.