Достоинством программы для проектирования Splan, созданной разработчиками немецкой компании Abacom, является её сверхнизкий объём занимаемого места на диске. Эту программку можно скачать и носить на флешке, она не требует инсталляции и каких-либо прибамбасов.


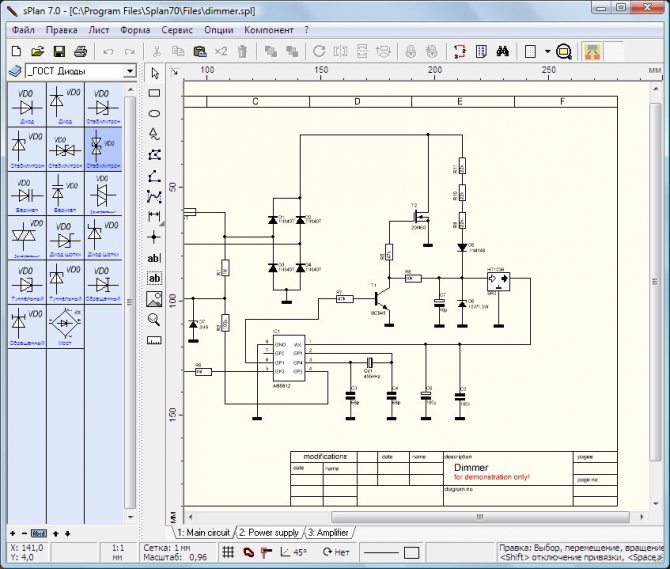
Так выглядит интерфейс программы Splan
Также в седьмой версии программы появился компактный вьюер, который позволяет не только показать чертёж клиенту на его компьютере, но и тут же распечатать его.
Достоинства Сплана
Графический редактор подобного типа позволяет выполнять большие и сложные электронные чертежи, конструировать электронное оборудование. Это целая чертёжная мастерская в пределах рабочей зоны монитора. К достоинствам этой программы можно отнести следующие моменты:
- изучение управления спланом занимает минимум времени;
- работа с текстом и таблицами упрощена и не вызывает трудностей;
- библиотечные базы редактируются и пополняются по усмотрению пользователя;
- вставка, редактирование файлов, повороты и перетаскивания объектов мышкой;
- использование точечной и линейной сеток, с изменением масштаба рисунка;
- возможность измерения размеров компонентов готовых схем и расстановка размеров на проектных чертежах;
- русскоязычный интерфейс и возможность работать в программе с внешнего носителя.
Важно! Для более комфортного пользования программой необходимо скачать русский перевод справки редактора. Начиная с шестой версии, программа splan не имеет справки на русском языке
Общие характеристики
Программа для проектирования Splan имеет интуитивно-понятный интерфейс. При минимальном наборе инструментов, она позволяет выполнять чертежи различной сложности. Кроме собственного формата чертежи можно экспортировать в популярные графические форматы BMP, GIF, JPG. То есть готовый чертёж можно переслать заказчику в виде рисунка.
Проектировать в этой программе одно удовольствие. Здесь есть:
- линейка;
- сетка с изменяющимся размером ячейки;
- группировка объектов;
- автоматическая установка размеров;
- текст;
- вставка рисунков;
- раскраска объектов и линий;
- задний, передний план;
- формирование листов в один файл;
- библиотеки элементов;
- шаблоны.
Программа Splan незаменима при проектировании планов, эскизов, структурных схем, альбомов однотипных схем.
Плюсы и минусы
Как и любое другое приложение, работающее под управлением Microsoft Windows, наша программа имеет ряд характерных положительных и негативных особенностей.


Достоинства:
Присутствуют огромные библиотеки проводников, деталей, соединителей и т. д., полностью соответствующих нормам ГОСТа. Вы всегда сможете выбрать нужную деталь, нужного номинала. Для того чтобы такой поиск был более точным, рекомендуем пользоваться настраиваемым фильтром.
Недостатки:
- В данном приложении не просто разобраться начинающим электронщикам. Для лучшего понимания вопроса им следует просмотреть один или несколько обучающих курсов и только потом приступать к работе. Если в процессе использования возникнут вопросы, вы можете задать их в комментариях к этой статье.
- В базе запасных частей отсутствуют некоторые очень нужные электромоторы. Но в следующей версии данный недостаток скорее всего устранят.
Далее давайте рассмотрим простейший пример работы с нашим приложением.
To Do Reminder
Программу можно назвать и планировщиком заданий, и менеджером напоминаний. Пользователю не нужна авторизация, хотя для синхронизации с другими сервисами без аккаунта не обойтись. Восстанавливать информацию придется вручную с карты памяти. У планировщика нет поддержки русского языка, но простой интерфейс и не требует особых знаний английского.
Возможности утилиты To Do Reminder включают:
- добавление и просмотр новых заданий;
- контроль истории поставленных задач;
- дополнение информации файлами аудио и текстовыми комментариями;
- синхронизация с другими сервисами – в том числе Google Календарем и Facebook.
Это также многоплатформенное приложение — есть версии на MacOS, Виндоус и Android
Быстрый поиск задания по названию и создание задач с аудиоуведомлениями делают программу очень удобной для тех, кто часто забывает заглянуть в список дел и пропускает что-то важное. Однако в бесплатной программе To Do Reminder отсутствует поддержка облачных хранилищ и синхронизация с другими гаджетами, поэтому подойдет такой планировщик не каждому пользователю
Достоинства Сплана
Графический редактор подобного типа позволяет выполнять большие и сложные электронные чертежи, конструировать электронное оборудование. Это целая чертёжная мастерская в пределах рабочей зоны монитора. К достоинствам этой программы можно отнести следующие моменты:
- изучение управления спланом занимает минимум времени;
- работа с текстом и таблицами упрощена и не вызывает трудностей;
- библиотечные базы редактируются и пополняются по усмотрению пользователя;
- вставка, редактирование файлов, повороты и перетаскивания объектов мышкой;
- использование точечной и линейной сеток, с изменением масштаба рисунка;
- возможность измерения размеров компонентов готовых схем и расстановка размеров на проектных чертежах;
- русскоязычный интерфейс и возможность работать в программе с внешнего носителя.
Важно! Для более комфортного пользования программой необходимо скачать русский перевод справки редактора. Начиная с шестой версии, программа splan не имеет справки на русском языке
Достоинства и недостатки программы sPlan
Достоинства:
- простой, интуитивно понятный интерфейс программы;
- функциональность программы;
- возможность создание рисунков и различных не электрических схем практически любой сложности;
- большое количество библиотек элементов;
- простота в создании собственных элементов и библиотек;
- экспорт во множество графических форматов;
- возможность быстрого создания схемы по ГОСТу.
Недостатки:
- отсутствие русской версии справки, начиная с шестой версии программы; (примечание: недостаток устранен, мной лично сделан перевод справки, скачать можно здесь)
- большинство элементов схем из библиотек выполнено не по отечественному стандарту;
- в существующей библиотеке элементов выполненной по отечественному ГОСТу лишь основные элементы.
Вывод: Прекрасный, полюбившийся большинству радиолюбителей редактор электрических принципиальных схем. Имеет огромную функциональность в совокупности с простотой выполнения чертежей. Однако для выполнения схем в точности оп ГОСТу требуется править существующие библиотеки элементов. Легок в освоении работы по черчению схем.
Для подробного изучения всех возможностей и функций предлагаю обратиться к инструкции (справке) по программе sPlan 7.0
Как я уже писал одним из недостатков программы sPlan является скромная база элементов, выполненных по отечественному ГОСТу, кого это не устраивает предлагаю ознакомиться с шаблонами для черчения электрических схем в программе Microsoft Visio.
Комплект шаблонов содержит набор условно-графических обозначений выполненных согласно отечественному ГОСТу и позволит чертить профессионалные электрические схемы.
ПОНРАВИЛАСЬ СТАТЬЯ? ПОДЕЛИСЬ С ДРУЗЬЯМИ В СОЦИАЛЬНЫХ СЕТЯХ!
Похожие материалы:
- Рисование электрических схем в программе Microsoft Word
- Новые возможности программы sPlan 7
- Скачай русскоязычный файл справки к программе sPlan 7.0
Комментарии
Роман64 18.11.2016 15:25 Нужно начертить полукруг. Помогите как сделать это. Тыкался никак не могу найти. Заранее благодарен буду
Цитировать
Олеся 25.05.2015 15:45 А почему рамка А1альбомная — ни разу не альбомная? мне не нужна вертикальная рамка:( на диплом не прокатит:/
Цитировать
Administrator 14.11.2013 16:06 Да согласен. Попробуйте открыть файл SVG в Corel Draw. Графическая часть преобразуется нормально, вместо текста кракозяблы!
Цитировать
Андрей 11.11.2013 08:42 Не могу провести операцию конвертирования файлов: sPlan-формат SVG(векторная графика)-Visio. При данной конвертации файл преобразовуется не полностью. Кто с таким встречался, помогите. Спасибо
Цитировать
Обновить список комментариев
Ключевые особенности sPlan 7.0
Последнюю версию программы от предыдущих отличает несколько новых дополнений:
- интерфейс на русском языке;
- обновлённые по ГОСТ библиотеки;
- возможность создавать свои библиотеки или скачивать и устанавливать другие;
- автосохранение готового материала;
- возможность рисовать в цвете;
- бесплатный предсмотрщик;
- создание списка элементов с любой страницы или по всему объёму;
- экспорт схем в другие форматы.
Использование определённых сочетаний клавиш упрощает и ускоряет процесс творчества в сплане.
Внимание! Существует SPlan7.0.0.9 Portable – бесплатная версия графической программы, с которой можно работать с внешнего носителя. Для этого не обязательно устанавливать её на ПК
Особенности


sPlan максимально удобен в применении. Все компоненты расположены слева на панели, а с правой стороны высвечивается панель с инструментами. Это разные геометрические фигурки и линии, возможность добавлять текст и растровые картинки.
Компоненты возможно нумеровать вручную или автоматически. Режим выбирается правой клавишей мышки среди свойств. В том же месте можно отредактировать все атрибуты.
Редактор позволяет также самостоятельно создавать компоненты, помимо уже существующих в библиотеке, и сохранять их для дальнейшей работы. Можно работать сразу с несколькими страницами, они будут открываться как отдельные вкладки.
Имеется возможность экспорта, эта функция позволяет переводить документ в графический и печатать, можно предварительно просмотреть полученный результат.
Данная версия редактора позволяет масштабировать чертеж посредством колесика мыши. Распечатать документ возможно в большом формате также.
Создание новой библиотеки
Если кликнуть мышкой по изображению книги, рядом с перечнем, выпадет контекстное меню, в котором будет предложено воспользоваться стандартной базой или пользовательской. Здесь можно либо удалить одну из них, либо добавить новую, выполнив действия:
- при выборе команды «добавить» выбрать путь, по которому программа будет обращаться к новой базе;
- там же нужно прописать название новой базы элементов;
- чтобы пользоваться созданной ранее библиотекой, необходимо создать папку и вложить в неё новые данные;
- новую папку разместить в каталоге, согласно предложенному пути.
Таким же способом допустимо переносить библиотеки с одного ПК на другой компьютер.
Скачать и установить графический редактор sPlan 7.0 rus может любой пользователь. По сравнению с другими подобными программами, например, Microsoft Visio (любой версии), Сплан гораздо понятнее и удобнее для работы. Его платная разработка позволит пользоваться всеми добавленными опциями.
sPlan.ОПС
На базе программы Сплан создано удобное и уникальное приложение, которое может использоваться как профессиональными инженерами, так и представителями малого и среднего бизнеса, частными лицами. Её основной функционал – проектирование пожарно-охранных сигнализаций, систем видеоконтроля и наблюдения.
В основу системы легла платформа 7 версии sPlanа. Фактически от известного продукта осталась только удобная оболочка: принцип построения схемы и чертежа, понятный интерфейс и портативные принципы работы. Остальная начинка была тщательно переработана.
В частности, полностью обновлены и перезалиты базы данных. Библиотеки соответствуют узкой специализации приложения, и содержат полный набор инструментов, позволяющий создать полноценную схему монтажа пожарной и охранной сигнализации, разработать детальный план установки и подключения камер видеонаблюдения, как наружных, так и внутри помещения.


Базы данных элементов логично структурированы и имеют понятные подзаголовки и разделы. Для того чтобы найти определенный элемент, необходимый для схемы, достаточно кликнуть по нужному разделу, а дальше, с помощью мышки, выбрать из списка подходящую позицию.
Как быстро вставить рисунок из программы sPlan 7 в документ текстового редактора Microsoft Word.
Я часто готовлю различные текстовые материалы, по роду своей деятельности в текстовом редакторе Microsoft Word со вставкой различной графической информации. Как вы уже догадались, для создания схем и рисунков я использую мой любимый редактор sPlan 7. Теперь я хочу с вами поделиться, как я быстро переношу рисунки из программы sPlan в Word, к тому же по этому вопросу я получал не мало писем.
Конечно, было бы логично использовать следующую цепочку действий: создание рисунка — экспорт рисунка в один из растровых форматов – вставки растрового рисунка в документ Word. Однако открою вам свой секрет, хотя на самом деле это очевидное действие, которым ни кто не пользуется!
Я переношу рисунки из sPlan в Word по следующей схеме: создание рисунка – копирование рисунка в буфер обмена – вставка рисунка в текстовый документ.
Для этого необходимо:
1. Выделить рисунок в sPlan (или его часть)
2. В меню «Файл» выбрать пункт «Буфер обмена…»
3. В окне «Копирование в буфер обмена..» установить качество рисунка и какие элементы рисунка скопировать (все или выделенные) и нажать ОК.
4. В редакторе Microsoft Word вызвать правой клавишей мыши контекстное меню и выбрать «Вставить» (либо в меню «Главная» пункт «Вставить», а лучше сочетание клавиш – Ctrl+C )
5. Готово!!!
Функционал
sPlan подходит для быстрого создания схем. Программа не рассчитана на профессионалов, но это не означает, что вы не должны понимать в софте подобного рода. Если вы не умеете работать со схемами, а также не понимаете в них, то интегрированная библиотека шаблонов не поможет завершить проект. Используя базовые навыки, вы с легкостью создадите свой проект и нарисуете схему без проблем. Программе не является сложной, ведь в ней нет панелей и дополнительных меню, которые усложняют процесс обработки данных.
Для импорта элемента на схему через интегрированный каталог, нужно перетащить его, воспользовавшись левой клавишей мыши. В каталоге есть разные группы элементов питания. При необходимости вы выберите необходимый элемент для электропитания. Кроме встроенных «заготовок», вы можете создать свой проект, которого нет в библиотеке программы. Вы можете проектировать схемы геометрических фигур, а также совмещать объекты с линиями.
При надобности вы можете добавить текстовые надписи. В sPlan есть поддержка «многостраничности», а также сохранение схем в графическом формате. Вы можете распечатать объект и просмотреть его перед печатью.
Создание новой библиотеки
Если кликнуть мышкой по изображению книги, рядом с перечнем, выпадет контекстное меню, в котором будет предложено воспользоваться стандартной базой или пользовательской. Здесь можно либо удалить одну из них, либо добавить новую, выполнив действия:
- при выборе команды «добавить» выбрать путь, по которому программа будет обращаться к новой базе;
- там же нужно прописать название новой базы элементов;
- чтобы пользоваться созданной ранее библиотекой, необходимо создать папку и вложить в неё новые данные;
- новую папку разместить в каталоге, согласно предложенному пути.
Таким же способом допустимо переносить библиотеки с одного ПК на другой компьютер.


Создание новой библиотеки
Скачать и установить графический редактор sPlan 7.0 rus может любой пользователь. По сравнению с другими подобными программами, например, Microsoft Visio (любой версии), Сплан гораздо понятнее и удобнее для работы. Его платная разработка позволит пользоваться всеми добавленными опциями.
Платные ПО
Бесплатные программки для составления электросхем своими силами мы рассмотрели. Однако Вы сами понимаете, что в платных версиях предоставлен более широкий набор возможностей и удобных дополнений, которые позволят начертить эл схему на компьютере. Существует множество популярных платных программ для черчения электрических схем. Некоторые из них мы предоставили выше, однако существует еще одна программка, о которой стоит немного рассказать — sPlan
. Это один из самых простейших в использовании и к тому же многофункциональных программных пакетов для составления схем разводки электропроводки и трассировки электронных плат. Интерфейс удобный, на русском языке. В базе данных заложены все самые популярные графические элементы для черчения электросхем.


Если Вам не жалко потратить 40$ за лицензию, мы настоятельно рекомендуем выбрать для черчения именно sPlan. Данное ПО без сомнений подойдет как для домашнего использования, так и для профессиональных проектировочных работ в чем Вы можете убедиться, просмотрев данное видео:
Вот мы и предоставили обзор самых лучших платных и бесплатных программ для черчения электрических схем на компьютере. Кстати, на телефон (на андроид) Вы можете скачать приложение «Мобильный электрик», в котором можно запросто произвести расчет основных элементов электрической цепи, который поможет правильно составить электросхему, если компьютера нет рядом!
Похожие материалы:
- Программы для расчета сечения кабеля
- Как стать электриком с нуля
- Условные обозначения в электрических схемах по ГОСТ
https://youtube.com/watch?v=KcNzgfpThAE
Что такое однолинейная схема электроснабжения?
Схема собой представляет конструкторский документ графического типа. Интерфейс должен быть простым, удобным, функциональным.
Программы для рисования электрических схем Черчение на бумаге далеко не всем доставляет удовольствие — долго, не всегда красиво, тяжело сразу правильно рассчитать габариты, а вносить корректировки неудобно. Программа, помимо того, что позволяет начертить схему, позволяет тестировать мощность цепи и смотреть за распределением ресурсов.
Есть возможность добавлять собственные элементы, если их в библиотеке не оказалось. Программа имеет возможность создавать: разнообразные инженерные и технические рисунки; электронные схемы; составлять эффектные презентации; разрабатывать организационные схемы, маркетинговые и многие другие.
Кстати, сразу хочу предупредить, несмотря на то, что сама программа бесплатна — дополнительные модули для нее — платные в принципе, для домашнего использования они вам вряд ли пригодятся. Процесс эксплуатации.
Описание панели инструментов для рисования электрических схем.
Недостаток — нет официальной русифицированной версии, но можно найти частично переведенную умельцами справка все равно на английском. Более полезна она для разработки плат, так как имеет встроенную функцию преобразования имеющейся схемы в трассу для печатной платы. Для подключения еще одной библиотеки нужно нажать кнопку «Создать», потом указать путь к библиотеке и ее название.
Кстати, в программе реализованы готовые стандартные фигуры, которые могут вам сэкономить время при черчении. Скачать Схема sPlan sPlan — один из самых простых инструментов в нашем списке. В нем выбираете нужные элементы, перетягиваете их на рабочее поле, устанавливая в нужном месте.
Первые отличаются большой практичностью, их возможности намного больше. Есть возможность добавлять собственные элементы, если их в библиотеке не оказалось. Здесь перед первым началом работы необходимо подгрузить библиотеку элементов. Этот обзор посвящен бесплатным программам для подготовки однолинейных электрических схем.
Есть встроенная библиотека, пополняемая с помощью особых функций. Имеющихся элементов также достаточно для составления не слишком сложных принципиальных электрических схем. В обширных библиотеках содержится все необходимая элементная база, создавать можно принципиальные, монтажные электрические схемы. Моделирование электронных схем в Multisim
Черчение электрических схем в программе sPlan: легко, быстро и качественно.
Черчение электрических схем производится в главном окне программы. Всё, что необходимо сделать, это перетащить готовые изображения электрорадиоэлементов из библиотеки элементов в главное окно программы (рис. 5 ).


Рисунок 5. Черчение электрических схем в sPlan.
При этом все графические элементы автоматически привязываются к сетке, размер которой устанавливается в верхней панели инструментов (рис. 6).
Рисунок 6. Установка шага сетки в программе sPlan.
Готовые элементы соединяются между собой проводниками (линиями) с помощью инструментов панели справа от библиотеки элементов, где необходимо проставляются места соединения проводников. Таким образом формируется готовая принципиальная схема.
В программе sPlan есть возможность вставки готовых рамок для чертежа электрической схемы различных размеров. Для этого необходимо зайти в меню Форма — Открыть форму (рис. 7)
и в окне выбора файлов, выбрать необходимую форму рамки (рис 8).


Рисунок 8. Окно выбора рамок для чертежа.
Теперь на чертеже красивая рамка, выполненная по ГОСТу (рис. 9)


Рисунок 9. Чертеж электрической схемы с рамкой.
В принципе я описал все основные функции программы, необходимые для создания электрической схемы по ГОСТу. В программе есть еще много разнообразных функций, таких как автоматическое формирование перечня элементов схемы, поиск элемента схемы, автоматическая нумерация элементов схемы по заданному направлению и т. д.
Бесплатные
Open Source.
Помимо этого ПО помогает выбрать автоматические выключатели подходящего номинала, рассчитать сечение кабеля по мощности и току и т. Что делать когда вы сидите за чужим компьютером и на нем нет тех необходимых САПР программ? Она нормально работает с системами от Windows и выше.
Пользователям программ Майкрософт хорошо знаком этот интерфейс.
Поддерживает Ардуино Arduino. Программа имеет хорошее время отклика, это не мешает производительности компьютера и есть достаточно опций для настройки. Также можно в 3D варианте посмотреть внешний вид готовой платы.
Существует множество популярных платных программ для черчения электрических схем. В базовый набор элементов входят УГО только основных радиодеталей пользователь может создать свои элементы и добавить их. С его помощью даже начинающий электрик сможет быстро нарисовать принципиальную электросхему дома либо квартиры. Существует огромное количество платных и бесплатных программ для разработки электрических чертежей.
Однако Вы сами понимаете, что в платных версиях предоставлен более широкий набор возможностей и удобных дополнений, которые позволят начертить эл схему на компьютере. Программа является обычным редактором, никаких специальных функций в ней не реализовано. Присутствует большое количество инструментов, обеспечивающих быстрое и правильное черчение схемы. УГО элементов хватает, однако в SchemeIt их больше. В первой нет возможности сохранить и распечатать нарисованную схему.
Вы также можете добавить строки или столбцы. Она нормально работает с системами от Windows и выше. С печатью ваших схем тоже не должно возникнуть проблем, все можно просмотреть, изменить масштаб, выбрать рамку для вашей схемы. В Компасе существует собственная база данных, в которой хранятся наименования и номиналы всех наиболее популярных типов автоматики, релейной защиты, низковольтных установок и других элементов цепи.
Их связка осуществляется всего одним кликом. Программа имеет многочисленные настройки, которые требуют в начале подробного изучения, но в дальнейшем сильно облегчают работу. Официально приложение не выпускается в русской локализации, но существуют программы, позволяющие русифицировать меню и контекстные подсказки. DCACLab — онлайн симулятор электрических схем
Ключевые особенности sPlan 7.0
Последнюю версию программы от предыдущих отличает несколько новых дополнений:
- интерфейс на русском языке;
- обновлённые по ГОСТ библиотеки;
- возможность создавать свои библиотеки или скачивать и устанавливать другие;
- автосохранение готового материала;
- возможность рисовать в цвете;
- бесплатный предсмотрщик;
- создание списка элементов с любой страницы или по всему объёму;
- экспорт схем в другие форматы.
Использование определённых сочетаний клавиш упрощает и ускоряет процесс творчества в сплане.
Внимание! Существует SPlan7.0.0.9 Portable – бесплатная версия графической программы, с которой можно работать с внешнего носителя. Для этого не обязательно устанавливать её на ПК
Как переместить библиотеку компонентов в sPlan 7 и подключить ее к программе.
Вот такой вот вопрос пришел ко мне на почту от одного из моих подписчиков:
«Здравствуйте Андрей! Просмотрел Ваши уроки! Спасибо огромное! Есть вопрос!!! У меня sPlan стоит на двух компьютерах, создаю новый компонент в библиотеке на одном компе и что бы на другом не создавать копирую папку standart или BIBO и переношу, но новые компоненты на другом компе в библиотеке не появляются. Как быть. Спасибо»
Эту задачу можно решить несколькими способами. Пусть нам необходимо с первого компьютера скопировать библиотеку на второй.
ВНИМАНИЕ: Перед тем как вы начнете выполнять нижеизложенные действия посмотрите в какую папку установлена программа sPlan. По умолчанию программа устанавливается в C:Program FilesSplan70
На самом деле системой для папки Program Files установлены атрибуты «Только для чтения», а так как при создании новых компонентов в библиотеке вы физически изменяете файл библиотеки, то система заблокирует какое либо изменение в файлах и таким образом при переносе библиотеки на другой компьютер вы просто скопируете старую библиотеку!
Так как изменять атрибуты имзенять не рекомендуется (да и это не так уж и просто сделать для папки Program Files без прав администратора) то советую установить программу в любое другое место, только не в папку Program Files.
Я думаю это самый простой способ. Для начала посмотрим на первом компьютере путь до текущей (подключенной в настоящее время) библиотеки, в которой создавались новые компоненты. Для этого в библиотеке компонентов кликнем на пиктограмме с голубой книгой и в выпадающем меню выберем пункт «Библиотеки…».
Перед вами появиться окно «Параметры», где в поле «Путь» можно будет посмотреть путь до папки с файлами библиотеки, а в поле «Название» соответственно название библиотеки. Вот именно эту папку и будем копировать на второй компьютер.
В принципе папку можно скопировать в любое место на жестком диске второго компьютера, главное запомните, куда вы ее скопировали!
Теперь на втором компьютере необходимо подключить эту библиотеку в качестве текущей. Для этого так же вызываем окно «Параметры», нажимаем кнопку «Создать», после чего в окне «Выбор каталога» указать папку с файлами библиотеки, которую вы скопировали с первого компьютера. Далее в поле «Название» меняем название нашей библиотеки. Закрываем окно и наслаждаемся новой библиотекой! Задача выполнена!
Радиолюбитель
Программа sPlan – это простой и удобный инструмент для вычерчивания электрических схем на экране компьютера. Программа sPlan имеет русифицированную версию и пользуется заслуженной популярностью среди радиолюбителей.
Доброго дня уважаемые радиолюбители! Приветствую вас на сайте “Радиолюбитель“
Существует много версий программы sPlan (), но мы рассмотрим работу этой программы на примере версии sPlan 7.0, которая не требует своей установки на компьютер, достаточно скачать ее, разархивировать и сразу можно приступать к работе.
sPlan_7.0.0.9.rar (2.6 MiB, 21,380 hits)
После скачивания и разархивирования программы дважды щелкаем мышью по иконке запуска программы и смотрим на экран.
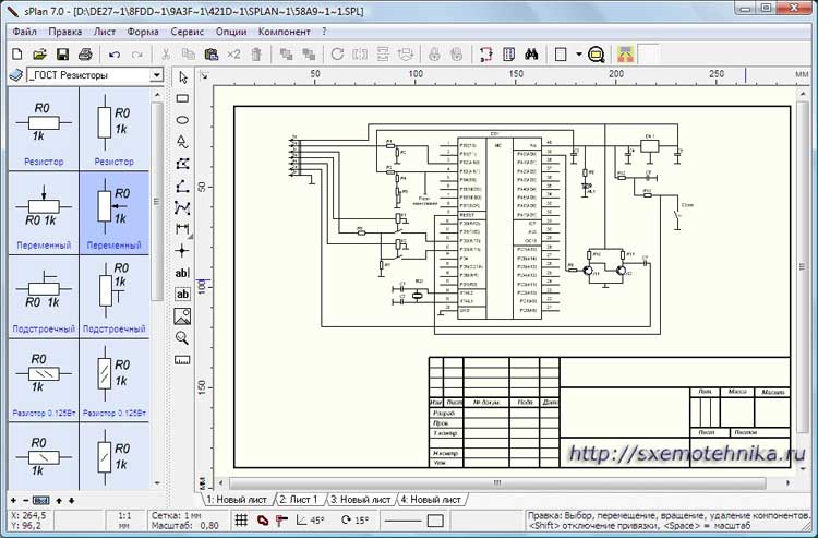
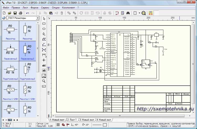
Ниже приведен скриншот запущенной программы в режиме редактирования электрической схемы:


Кстати, любую картинку вы можете рассмотреть в увеличенном виде щелкнув мышью по ней. Вот так выглядит окно запущенной программы. Это окно можно разделить на несколько функциональных частей:
1-я часть: окно рисования электрических схем:


Данное окно представляет собой поле, с нанесенной сеткой в виде линий или точек, или вообще без них и двух линеек – горизонтальной и вертикальной (в миллиметрах).
2-я часть: окно библиотеки радиоэлементов и сопутствующих компонентов:


Выбор библиотеки. Здесь вы можете выбрать стандартную или вашу библиотеку радиоэлементов, или другие библиотеки, таже созданные вами или загруженные с интернета.
Выбор категории элементов. Здесь выбирается нужная вам категория радиоэлементов: транзисторы, диоды, катушки и т.д.
Выбор радиоэлементов из категории. Здесь выбирается конкретный радиоэлемент (в данном случае – транзистор n-p-n или p-n-p и т.д.).
Количество столбцов при отображении элементов – в данном случае 2 столбца (комментирования не требует).
Отображение описания радиоэлементов. При включении данной опции под радиоэлементами будет отображаться их краткое описание (если есть).
Переход на следующую категорию – тоже, что и выбор категории радиоэлементов.
3-я часть: главное меню:
♦ файл: стандартный набор опций: – создать – открыть – сохранить – шаблон (выбор параметров листа на котором будет рисоваться схема) – загрузить изображение (в формате BMP или JPEG) – экспорт – буфер обмена – печать Все опции стандартные для любой программы и особых комментариев не требуют
♦ правка: – отменить – повторить – вырезать – копировать – вставить – дублировать – повторить Также вполне стандартный набор опций, не требующий комментариев
— лист: – свойства
Здесь выбирается формат листа, его название и дается расширенное описание.
– новый лист:
Здесь добавляется новый лист и его место среди всех листов проекта.
– дубликат:
Здесь дублируется уже имеющийся лист и указывается его место среди остальных листов.
– остальные опции пояснений не требуют.
— форма: здесь выбирается или редактируется форма листа на котором будет разрабатываться проект, образцы форм можно посмотреть выбрав опцию “открыть форму”. Особых пояснений не требуется.
— сервис: тоже довольно стандартный набор опций в котором очень просто разобраться.
— опции: – основные параметры. Многостраничное меню:


Основные параметры. Особых пояснений не требуется. Но, естественно, в будущем можно поэкспериментировать.
Следующее меню – каталоги:


Места сохранения чертежей, форм и куда будет экспортироваться графика.
Следующее меню – библиотеки:


Здесь можно настроить следующие параметры: создать библиотеку, удалить библиотеку, присвоить ей имя, указать место хранения библиотеки.
Следующее меню шрифты:


Здесь вы можете указать программе каким шрифтом вы будете пользоваться по умолчанию.
Из оставшихся опций рассмотрим еще две – сетка и шкала:


Сетка. Здесь устанавливается по умолчанию вид сетки на поле рисования схемы.


Шкала. Установки по умолчанию горизонтальной и вертикальной линеек поля рисования схемы.
— стили линии по умолчанию:


Здесь выбирается стиль линий, которыми соединяются компоненты, создаются новые элементы.
— стили многоугольника по умолчанию:
Здесь выбирается стили контура и заливки многоугольных форм.
♦ компонент: этот раздел- создание нового радиоэлемента, мы рассмотрим немного позже.
4-я часть: три панели для работы с электрическими схемами
♦ первая панель (верхняя):


♦ вторая панель (боковая):


♦ панель третья (нижняя):


Ну вот, наконец, мы рассмотрели из чего состоит программа и назначение ее панелей и кнопок. Теперь перейдем к практической части – вычерчивание электрической схемы.
За основу мы возьмем схему простого блока питания:


Для вычерчивания данной схемы нам потребуется: трансформатор, диодный мост (или 4 отдельных выпрямительных диодов), три электролитических конденсатора, один конденсатор неэлектролитический, два сопротивления мощностью 0,5 Вт, одно переменное сопротивление, два отдельных диода, микросхема стабилизатора напряжения типа КРЕН и светодиод. Выбираем все нужные элементы в окне библиотеки и располагаем их в окне рисования схемы:


Вот такая, приблизительно, у вас должна получиться картина. Вы наверное заметили, что при перетаскивании элементов, происходит их автоматическая нумерация, что в принципе очень удобно. При выборе элементов в библиотеке мы не нашли два элемента – переменный резистор и микросхему типа КРЕН, поэтому нам придется создать их самостоятельно. Первым создадим переменный резистор. Для этого воспользуемся в главном меню опцией “компоненты“. Раскрыв опцию мы увидим следующий выбор: создать компонент из выделенного, разделить компонент, копировать компонент в библиотеку и надписи, то есть у нас нет выбора для создания нового компонента. Новый компонент можно создать взяв за основу какой-нибудь другой. Выберем из библиотеки еще один постоянный резистор без маркировки мощности. Щелкаем два раза мышью по резистору и попадаем в меню редактирования элемента:


Заполняем соответствующие разделы меню: обозначение – так и оставляем R; номинал – ставим 5,1 К (как по схеме); описание – переменный резистор. Далее нажимаем кнопку “редактор” и переходим в меню редактирования внешнего вида элемента:


В верхнем меню выбираем опцию “сетка” и выставляем значение сетки – 1 мм (рекомендуется). Далее, в левом меню, выбираем опцию “линия” и дорисовываем к центру резистора стрелку (порядок рисования – выбираем точку откуда начнется линия, щелчок левой кнопкой, ведем линию в нужном направлении и нужной длины, щелчок левой кнопкой, щелчок правой кнопкой):


Новый компонент под названием переменный резистор готов. Выбираем меню “редактор компонента” а в нем опцию “сохранить и выйти”. При этом мы опять вернемся в меню вычерчивания схемы, где увидим отредактированный нами резистор:
Теперь нам надо сохранить созданный компонент в библиотеке. В библиотеке выбираем и открываем категорию резисторы, правой кнопкой щелкаем по переменному резистору, появляется меню в котором выбираем самую последнюю строчку “скопировать компоненты в библиотеку. В самом конце в библиотеки должен появиться наш компонент:
Кстати, если ввести курсор в область библиотеки и щелкнуть правой кнопкой, появится меню, через которое можно создать элемент с нуля. Но методом редактирования элемента создавать новый более удобно.
Немного о щелчках левой кнопкой мыши. Один щелчок – выделение элемента, второй щелчок – перевод элемента в режим вращения, два быстрых щелчка – переход в режим редактирования.
Теперь создадим микросхему. За основу возьмем созданный нами переменный резистор. Выделяем его одним щелчком, затем в главном меню выбираем опцию “дублировать” (значок “х2″), устанавливаем второй переменный резистор в свободном месте и двумя щелчками по нему переходим в режим редактирования. Заполняем поля: обозначение – DA, в графе номинал – наименование микросхемы – КР142ЕН12, описание – стабилизатор напряжения. А затем нажатием кнопки редактор переходим в режим рисования элемента. Убираем усики у стрелки, растягиваем корпус, выделяем весь элемент, разворачиваем на 90 градусов,перемещаем в нужное нам место “обозначение” и “номинал”. Рядом с ножками получившегося элемента вставляем надписи IN, OUT, GND (или цифры 2,8,17, обозначающие выводы микросхемы) и получаем приблизительно вот такое:


Далее – редактор компонента и сохранить и выйти. Получим в окне рисования схемы новый элемент:
У вас, естественно, он может иметь иной вид. Теперь создадим в библиотеке новую категорию для нашей микросхемы, к примеру – “микросхемные стабилизаторы”. Для этого вводим курсор в поле библиотеки и щелкаем правой кнопкой. В появившемся меню выбираем опцию -“создать новый раздел библиотеки”, появится новый раздел с чистым полем. Щелкаем правой кнопкой по вновь созданному элементу и в появившемся меню выбираем опцию “скопировать компоненты в библиотеку”. И в нашем новом разделе появиться первый компонент:


Теперь переходим к самому главному – вычерчивание схемы. Для этого, сначала, компонуем будущую схему расставляя детали на поле рисования. Получим нечто такое:


Следующим этапом нам надо прописать номиналы радиодеталей (резисторы, конденсаторы, диоды), а также развернуть конденсатор С3 – плюсом вверх и развернуть наименования резисторов R2 и R3 и диода D2. Рассмотрим порядок действий на резисторе R3. (Заодно поменяем порядок нумерации резисторов). Двумя щелчками по резистору R3 переходим в режим редактирования. В обозначении ставим R1, снимаем галочку в графе автонумерация, номинал ставим 15К (как по схеме), нажатием копки редактор, переходим в режим рисования элемента.
Здесь мы разворачиваем “обозначение” и “номинал” на 90 градусов и выставляем справа от корпуса резистора (один щелчок – выделение, второй щелчок переход в режим поворота элемента), и получаем вот такой вид:


После этого нажимаем “зеленую галочку” и возвращаемся в программу. Резистор теперь выглядит на схеме так:
Таким же образом поступаем с остальными радиоэлементами, и получаем такую картину:


И наконец-то, последний этап. В левой панели выбираем опцию “линия” и с ее помощью рисуем линии, соединяя радиодетали в соответствии со схемой. Рекомендуется сначала сделать линии питания. После того, как все соединения будут сделаны, выбираем в левой панели опцию “узел” и расставляем точки в местах пересечения линий, где они по схеме должны соединяться. Получаем на выходе примерно такую картинку:


Далее, используя опции левой панели, наносим соответствующие надписи. Затем сохраняем созданную схему в вашу папку. Также можно привести вашу схему к более цивилизованному виду. Для этого в главном меню выбираем “форма” а в ней опцию “открыть форму“. В появившемся окошке выбираем нужную нам форму и получаем такую картинку:


Заполняем графы в правом нижнем углу, распечатываем и представляем на суд экспертов.
На этом я заканчиваю описание программы. Если у кого-то есть вопросы, или обнаружены ошибки, неточности, опечатки, просьба сообщать в комментариях.
Использование
Рабочее поле представляет собой чистый лист с вертикальной и горизонтальной линейкой, на котором создаётся схема или рисунок. Создавая схему, нужно выбрать из splan библиотеки готовые, подходящие по смыслу элементы. После этого перетащить выбранные спрайты в рабочую зону листа. Выполняя их соединение между собой, используют линии, калиброванные по толщине.
Выполнив выделение спрайтов, можно их ориентировать в горизонтальной и вертикальной плоскости, поворачивая на любой градус. В соответствии с избранным масштабом, все элементы графики автоматически прикрепляются к сетке проекта.
В процессе работы выбранные в библиотеке компоненты можно копировать, вставлять, вырезать и перемещать по всей поверхности рабочего стола программы.
Важно! Все элементы библиотеки соотнесены с ГОСТ. В качестве дополнительной опции существует возможность составлять избранные файлы в библиотеке, добавлять свои, обновлять и пополнять библиотечный реестр необходимыми пакетами изображений
Рабочий стол программы
Программа по электробезопасности: 2 группа
Кроме белого поля, для построения чертежа или схемы на рабочем столе программы находится следующая раскладка:
- основное меню;
- панель управления;
- панель инструментов;
- библиотека;
- панель управления свойствами.
Работа с файлами, правка рисунка, изменения формата, установка стилей – всё это задаётся при помощи главного меню.
В панели управления работают с файлами: открывают, сохраняют, выводят на печать, изменяют масштаб и устанавливают сетку. Здесь же происходят нумерация страниц для ранжирования и поиск необходимых компонентов. Одна из опций этой панели разрешает выбирать цвет для родительских и дочерних объектов.
Используя инструментальную панель, пользователь управляет инструментами для построения схем. Вставка фигур и текстовых блоков, начертание линий и полигонов, измерения, регулировка масштаба – вот только некоторые опции этой панели.
Библиотека имеет обширную базу графических символов и изображений радио,- и электрической тематики. В ней можно хранить собственные созданные шаблоны и избранные комплекты графики. Для использования необходимых объектов их перетаскивают мышкой на лист.
Значение опций панели управления в программе выставлены по умолчанию. Если необходимо работать в соответствии с индивидуальными параметрами, то их меняют отдельно с помощью соответствующих команд интерфейса рабочего стола.
Как создать схему в sPlan


После скачивания и инсталляции программы ее нужно открыть. Выходит окно с инструментами и листом, где можно рисовать схему. Нажимая на соответствующие кнопки, можно выбирать фигуры и функции. Среди них:
- Линия;
- Прямоугольник;
- Указка;
- Кривая Безье;
- Окружность;
- Фигура;
- Измеритель;
- Особая форма;
- Размеры;
- Узел (Точка соединения);
- Текстовый блок;
- Рисунок;
- Лупа.
В первую очередь нужно определиться с форматом рабочего листа. Выбрать нужные параметры можно в представленных функциях. При создании чертежей включается функция сетки. Этот инструмент помогает совмещать все элементы схемы. Размеры сетки можно менять, она по умолчанию настроена на 1 мм. Это считается оптимальным для многих чертежей.
Чтобы создать требуемую схему, достаточно перенести все детали из библиотеки на рабочий лист и соединить. Они автоматически закрепляются на сетке. Если возникнет необходимость, схему можно отредактировать. Все элементы возможно:
- перемещать;
- вырезать;
- копировать;
- группировать;
- удалять;
- вставлять;
- вращать по заданному углу и многое другое.
Использование
Рабочее поле представляет собой чистый лист с вертикальной и горизонтальной линейкой, на котором создаётся схема или рисунок. Создавая схему, нужно выбрать из splan библиотеки готовые, подходящие по смыслу элементы. После этого перетащить выбранные спрайты в рабочую зону листа. Выполняя их соединение между собой, используют линии, калиброванные по толщине.
Радиосхемы для дома своими руками
Выполнив выделение спрайтов, можно их ориентировать в горизонтальной и вертикальной плоскости, поворачивая на любой градус. В соответствии с избранным масштабом, все элементы графики автоматически прикрепляются к сетке проекта.
В процессе работы выбранные в библиотеке компоненты можно копировать, вставлять, вырезать и перемещать по всей поверхности рабочего стола программы.
Важно! Все элементы библиотеки соотнесены с ГОСТ. В качестве дополнительной опции существует возможность составлять избранные файлы в библиотеке, добавлять свои, обновлять и пополнять библиотечный реестр необходимыми пакетами изображений
Описание
Это софт для любителей электроники и радио, также рекомендован к использованию студентами профильных специальностей для использования в учебном процессе. Популярные русские версии – splan 7.0 rus, splan 8.0 rus.
Внимание! Версии программы ориентированы под различные операционные системы (ОС), на что при скачивании софта для установки следует обращать внимание. Технические характеристики программы splan 7.0.0.1 (7.0.0.4) Rus Edition:
Технические характеристики программы splan 7.0.0.1 (7.0.0.4) Rus Edition:
- разработчик софта – Abacom Electronics;
- платформа установки – PC;
- требования к ОС: Win 95,98,NT,2000,XP,Vista;
- объём занимаемого места на жёстком диске – 6 Мб;
- оперативная память – 256 Мб;
- необходимая видеокарта – 32 Мб;
- язык – русский.
Программа при установке и пользовании не требует дополнительных исполняемых файлов («cracked.exe», «crack», «keygen», «trial reset» и т.п). Бесплатная версия для исполнителей электронных схем позволяет изображать и выводить готовый чертёж в удобных форматах: BMP, JPG, GIF, EMF и SVG. Вставка пользовательских файлов в исполняемую схему – один из плюсов софта. Работа проводится при помощи манипуляций мышкой. В библиотеке – подробный выбор разложенных по группам элементов.
Функции печати и экспорта файлов в программе sPlan
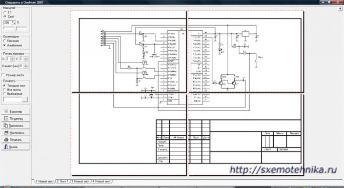
Вывести на печать чертеж электрической схемы можно с помощью простого и понятного окна печати. Однако в версии программы sPlan 7 появилась возможность печати баннера. Эта функция позволяет печатать чертеж любого размера, на листах под ваш принтер. То есть, происходит автоматическая разрезка чертежа на части, с заданным нахлестом, и печать этих частей (рис 7).


Рисунок 10. Окно печати. Разрезка чертежа в sPlan.
Функция экспорта файлов позволяет сохранять созданный чертеж в форматах: GIF, JPG, BMP, EMF и SVG.


Рисунок 11. Окно экспорта файла в графические форматы.
Альтернативы программы Planoplan
| Программа | Логотип |
|
Дизайн Интерьера 3D — программа для Windows от отечественного разработчика. Это отличный аналог Planoplan. Основное назначение — проектирование квартир и продумывание интерьера, поэтому здесь вы легко начертите нужные помещения, сможете выбрать для них отделку и расставить мебель так, как вам хочется. А самое главное — для работы не требуется онлайн-подключение. |
|
|
Sweet Home 3D — мультиязычный редактор для создания дизайн-проектов. Подходит для работы на Windows, Mac, Linux. Позволяет нарисовать подробные планы помещений: добавлять комнаты, выбирать отделку и мебель. |
|
|
Planner 5D — софт на русском, предназначенный для создания макетов домов и квартир. Поддерживает работу на iOS 5.0+, Windows, macOS. Существует версия для iPad и Android. |
|
|
Floorplanner специализируется на создании поэтажных планов дома. Работает на английском. Недостаток этой программы для замены Planoplan заключается в том, при работе нельзя копировать этажи: каждый раз придется начинать работу с начала. |
|
|
Roomtodo — еще один онлайн-сервис, позволяющий создавать помещения и просматривать их как чертежи, от первого лица или в режиме 3D. |
|
|
Autodesk Homestyler — англоязычное программное обеспечение для создания интерьера. Аналогично Planoplan работает в браузере и требует авторизации. |
|
|
Remplanner — бесплатная онлайн-программа для проектирования интерьера. В каталогах представлено множество предметов мебели и вариантов отделки. Однако существенным минусом является отсутствие линейки, поэтому пользователям сложно понять сколько свободного места остается в комнате. |
|
|
ArchiCAD — профессиональная программа для моделирования. Софт платный и больше всего подходит для опытных пользователей. |
|
|
3dsMax — одна из самых популярных программ и хороший вариант альтернативы Planoplan. Софт обладает большим количеством инструментов. Однако разобраться во всех нюансах сможет далеко не каждый пользователь. |
|
|
SketchUp — бесплатная программа для 3D рисования, предназначенная для некоммерческого использования. Также существует платная версия с более широким функционалом — SketchUp Pro. Для работы требуется Google-аккаунт. |
|
|
VisiCon — условно-бесплатная программа для планировки квартиры. С ее помощью можно создавать помещения разных размеров и обустроить их желаемым способом. Отлично работает с Windows. |
|
|
Aston dizayn — бесплатный софт для создания 3D планов. После окончания разработки плана вы можете отправить результат производителю для расчета стоимости выбранной мебели. |
|
|
PRO100 позволяет создать точную копию реальных помещений и выбрать для них мебель. Софт рассчитан на продвинутых пользователей, работает на ОС Windows. |
|
|
IKEA Home Planner — программа от IKEA, позволяющая быстро продумать обстановку квартиры. В каталоге мебели представлены предметы исключительно от данного производителя. |
|
|
Home Plan Pro — англоязычная программа для продумывания планировки. Результат можно сохранить в PDF или как изображение JPG, GIF или BMP. |
Remember the Milk
Программа, обеспечивающая эффективное планирование с хранением информации в облаке. У планировщика есть также поддержка пользовательских списков и тегов, синхронизация и удобный сенсорный ввод.
Среди других заслуживающих внимания возможностей стоит отметить:
- контроль рабочих процессов с помощью сортировки и многопользовательского взаимодействия;
- перемещение всех задач по умолчанию в папку входящих;
- связь заданий с геолокациями и контактами;
- систему напоминаний, взаимодействующую с различными сервисами, от Evernote и Microsoft Outlook до Твиттера.
Одним из главных преимуществ утилиты является поддержка практически всех популярных операционных систем: Android, iOS, BlackBerry OS, macOS и Windows. To Еще одна важная особенность – получение уведомлений о запланированных делах на почту, по СМС и в мессенджерах. В платной версии также доступна неограниченная автосинхронизация и PUSH-уведомления.
Поддерживаемые расширения и настраиваемые параметры
Предусмотрены кнопки для быстрого доступа к стандартным операциям сохранить, распечатать. Попробуйте подобрать программу при помощи нашего инструмента.


После завершения процедуры рисования чертеж можно сохранить в электронном виде и при необходимости распечатать на бумаге в нужном формате. Электрики свободно смогут создавать здесь схемы и чертежи с помощью встроенных инструментов.


Программы из набора:
Программа DipTrace — для рисования однолинейных схем и принципиальных Эта программа полезна не только для рисования схем электроснабжения — тут все просто, так как нужна только схема. Описание программы В данную сборку программы входит большая библиотека самых разнообразных радиоэлементов, но если не найдете нужной вам детали то рисунок для нее вы сможете за несколько минут нарисовать сами и добавить в библиотеку для последующего многократного использования. В программе есть режим автоматического подбора ячейки нужной конфигурации с учетом ранее заданных критериев. Пользователям программ Майкрософт хорошо знаком этот интерфейс.
Существенным недостатком системы является отсутствие поддержки русского языка, соответственно, все техническая документация также представлена в сети на английском. В общем, по многочисленным отзывам — стоящий продукт, с которым легко работать. К положительным моментам можно отнести наличие приличного количества уроков по работе с этой программой для рисования схем, причем на русском языке. Также в программе присутствуют и другие настройки — попробуйте и настройте все под себя как вам нужно.
Есть демоверсия с ограничениями. Первые отличаются большой практичностью, их возможности намного больше. Также можно в 3D варианте посмотреть внешний вид готовой платы. Бесплатная программа для рисования электрических схем. tokzamer.ru
Текстовые возможности Splan7
Сплан можно использовать как для весьма специфичных целей, так и для решения более простых, но не менее востребованных задач. Программа оснащена хорошими текстовыми и визуальными редакторами, позволяющими создавать шаблонную печатную продукцию, а также наглядные демонстрационные плакаты и презентации.
Пользуясь шаблонными решениями, в sPlanе можно создавать визитки, буклеты и прочую, необходимую в бизнесе, продукцию.
Интегрированные библиотеки различных профилей позволяют наглядно продемонстрировать выполненную работу или презентовать возможности проектировщика.
Различные шрифты, поддержка мультимедиа в электронных презентациях и другие возможности текстового редактора могут стать если не главным функционалом программы, то приятным дополнением для проектировщиков, рассказывающих о своих разработках.












































